Maison neuve à 
  Nonant
 (14400)  Référence :
 JS2322552_10 
Prix du projet : Maison avec Terrain
prix 201 000 €
- 5 pièces
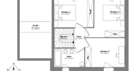
- 3 chambres
- Surface maison 85 m2
VENTE : maison de 5 pièces (85 m²) à Bayeux
MAISON 5 PIÈCES NEUVE - PROCHE DE CAEN
À 9 km de la Manche et à deux pas de Caen, laissez vous charmer par cette maison de 5 pièces de 85 m² et de 301 m² de terrain en vente à Bayeux (14400). Elle offre trois chambres, une cuisine et une salle de bains.
Il s'agit d'une maison de 2 niveaux. Elle est neuve.
Tous les types d'écoles (maternelle, élémentaire et secondaire) se trouvent à moins de 10 minutes à pied, tout comme une structure d'accueil pour les tout-petits. Niveau transports, il y a la gare Bayeux dans les alentours. On trouve un accès à la nationale N13 à 3 km. On trouve une bibliothèque, des commerces, des boulangeries, un supermarché, des boucheries-charcuteries et trois épiceries à proximité du bien. Enfin, 2 marchés animent le quartier.
Elle est proposée à l'achat pour 201 000 €.
Contactez notre agence (HUE Emilie : 06-29-81-46-66) pour toute question sur la maison ou sur les démarches à suivre. Maisons France Confort Bayeux est là pour vous accompagner à toutes les étapes de votre projet.
Annonce proposée par un Agent Commercial Partenaire.
Mentions légales
Terrain proposé par un partenaire foncier selon disponibilités et autorisation de publicité au prix de 56 000 €. Hors droit d'enregistrement et frais de notaire. Maison proposée, avec un contrat de construction de maison individuelle, dans le cadre de la loi du 19/12/1990, au prix de 145 000 € (Hors branchements et raccordements, papiers peints, peintures, revêtement de sol dans les chambres, qui sont chiffrés dans les travaux qui restent à charge du client. Tarif modifiable sans préavis). Étiquette énergie : A. Différents modèles disponibles pour ce terrain. Assurances et garanties du constructeur comprises (RC professionnelle, décennale, dommage ouvrage).Agence Maisons France Confort de Bayeux (14400)
- Téléphone :
- 02 31 51 20 91
- Adressse :
-  2, rue Saint Loup
 14400 Bayeux, France
 
  
  
  
  
  
 