Maison neuve à
Notre-Dame-de-Monts (85690) Référence : CM2495390_3

Prix du projet : Maison avec Terrain

prix 315 990 €

  • 5 pièces
  • 3 chambres
  • Surface maison 82 m2

MORICE Camille Tel; 06-71-72-13-06

MAISON NEUVE À NOTRE-DAME-DE-MONTS AVEC 5 PIÈCES SUR 82 M²

PRÉSENTATION DU BIEN
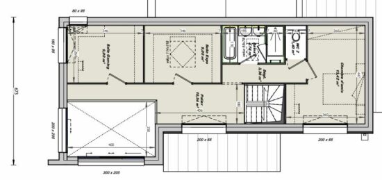
Située à Notre-Dame-de-Monts, cette maison neuve à construire dispose d'une surface habitable de 82 m² implantée sur un terrain de 436 m². L'océan Atlantique se trouve à seulement 589 mètres.

Cette maison se compose de trois chambres, d'une cuisine et de deux salles de bains. Vous disposerez d'un espace adapté pour réaliser votre projet de vie en toute sérénité.

La maison s'organise sur deux niveaux.

Le terrain de 436 m² offre un espace extérieur généreux, idéal pour agrandir votre projet ou aménager un jardin selon vos envies.

ENVIRONNEMENT

Notre-Dame-de-Monts, commune résidentielle proche de l'océan Atlantique, vous offre un cadre agréable à moins de 10 minutes à pied de la mer. Vous trouverez autour de vous des commerces variés, ainsi que deux écoles primaires, École Primaire Privée Nazareth et École Primaire Publique les Embruns, accessibles en quelques minutes à pied. Les équipements culturels et sportifs comme les restaurants et un terrain de tennis sont aussi à proximité, facilitant votre quotidien.

NOUS CONTACTER
Cette maison à construire est proposée à la vente au prix de 315 990 euros.

Pour plus d'informations ou pour organiser une visite, contactez Camille MORICE de l'agence LMP Constructeur Challans. Vous pouvez joindre Camille MORICE au 06-71-72-13-06. N'hésitez pas à prendre contact pour réaliser votre projet immobilier à Notre-Dame-de-Monts.

MORICE Camille Tel; 06-71-72-13-06

Mentions légales

Terrain proposé par un partenaire foncier selon disponibilités et autorisation de publicité au prix de 109 000 €. Hors droit d'enregistrement et frais de notaire. Terrain + Maison proposés au prix de 315 990 € (Hors branchements et raccordements, papiers peints, peintures, revêtement de sol dans les chambres. Tarif modifiable sans préavis). Etiquette énergie : A. Différents modèles disponibles pour ce terrain. Assurances et garanties du constructeur (RC professionnelle, décennale, dommage ouvrage, garantie de remboursement de l'acompte, livraison à prix et délai convenu) : https://www.lmp-constructeur.com/mentions-legales/.

Contactez l'agence de Challans

02 51 55 17 74

    * Champs obligatoires

    Vos informations sont traitées par HEXAOM et transmises à un conseiller commercial qui vous contactera afin de répondre à votre demande. Les plans et images présentés sur notre site sont la propriété d’HEXAOM et ne peuvent pas être reproduits sans son accord. Pour retrouver notre politique de protection des données personnelles et exercer vos droits conformément à la « loi informatique et liberté » cliquez-ici.