Maison neuve à
Notre-Dame-de-Monts (85690) Référence : CM2495390_4

Prix du projet : Maison avec Terrain

prix 349 490 €

  • 3 pièces
  • 3 chambres
  • Surface maison 90 m2

MORICE Camille Tel; 06-71-72-13-06

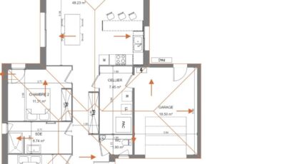
MAISON NEUVE DE 90 M² À NOTRE-DAME-DE-MONTS, 3 PIÈCES

PRÉSENTATION DU BIEN
Située à Notre-Dame-de-Monts, cette maison neuve à construire offre une surface habitable de 90 m² sur un terrain de 436 m². Vous profiterez de la proximité de l'océan Atlantique, situé à seulement 589 mètres.

Cette maison dispose de 3 chambres, d'une cuisine et d'une salle de bains avec baignoire, pour un total de 90 m² habitables. Vous pourrez réaliser et personnaliser votre future habitation répondant à vos besoins.

La maison est de plain-pied, facilitant la circulation et l'accessibilité sur un seul niveau.

Le terrain de 436 m² offre un espace extérieur pour vos projets d'aménagements extérieurs.

ENVIRONNEMENT

La commune de Notre-Dame-de-Monts bénéficie d'un cadre proche de l'océan Atlantique. Vous trouverez à proximité des écoles primaires telles que l'école primaire privée Nazareth et l'école primaire publique les Embruns, accessibles en quelques minutes à pied. Le secteur dispose également de commerces variés, restaurants et marchés animés à proximité, pour répondre à vos besoins quotidiens. Pour vos loisirs, un court de tennis et une salle de cinéma sont facilement accessibles.

NOUS CONTACTER
Cette maison est proposée à la vente au prix de 349 490 euros, honoraires compris. Vous pouvez réaliser votre projet dans la zone PTZ B1.

Pour plus d'informations, contactez Camille MORICE de l'agence LMP Constructeur Challans, du réseau LMP Constructeur, au 06-71-72-13-06. Son expertise vous accompagnera dans la réalisation de votre maison. N'hésitez pas à appeler dès maintenant pour concrétiser votre projet.

MORICE Camille Tel; 06-71-72-13-06

Mentions légales

Terrain proposé par un partenaire foncier selon disponibilités et autorisation de publicité au prix de 109 000 €. Hors droit d'enregistrement et frais de notaire. Terrain + Maison proposés au prix de 349 490 € (Hors branchements et raccordements, papiers peints, peintures, revêtement de sol dans les chambres. Tarif modifiable sans préavis). Etiquette énergie : A. Différents modèles disponibles pour ce terrain. Assurances et garanties du constructeur (RC professionnelle, décennale, dommage ouvrage, garantie de remboursement de l'acompte, livraison à prix et délai convenu) : https://www.lmp-constructeur.com/mentions-legales/.

Contactez l'agence de Challans

02 51 55 17 74

    * Champs obligatoires

    Vos informations sont traitées par HEXAOM et transmises à un conseiller commercial qui vous contactera afin de répondre à votre demande. Les plans et images présentés sur notre site sont la propriété d’HEXAOM et ne peuvent pas être reproduits sans son accord. Pour retrouver notre politique de protection des données personnelles et exercer vos droits conformément à la « loi informatique et liberté » cliquez-ici.