Maison neuve à
Notre-Dame-du-Pé
(72300) Référence :
SM2440033_8
Prix du projet : Maison avec Terrain
prix 220 316 €
- 5 pièces
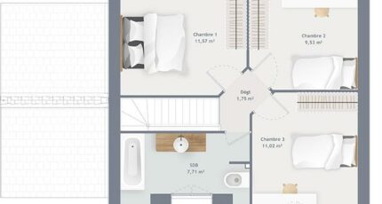
- 3 chambres
- Surface maison 80 m2
VENTE d'une maison F5 (80 m²) à Notre-Dame-du-Pé
IDÉALEMENT SITUÉE - MAISON 5 PIÈCES NEUVE
À vendre idéalement située dans Notre-Dame-du-Pé (72300), nous vous proposons cette maison de 5 pièces de 80 m².
Il s'agit d'une maison de 2 niveaux. Son intérieur dispose de trois chambres, d'une cuisine et d'une salle de bains. La maison est neuve.
Le terrain de la propriété s'étend sur 772 m².
Cette maison se situe dans un secteur attractif. L'École Primaire Privée Saint Paul se trouve à moins de 10 minutes à pied. Niveau transports en commun, il y a la gare Morannes à moins de 10 minutes en voiture.
Elle est proposée à l'achat pour 220 316 €.
Prenez contact avec notre agence (Stéphane MAGNE : 06-73-60-18-45) pour toute information sur la maison. Maisons France Confort Saint-Saturnin vous accompagne dans toutes vos démarches et à toutes les étapes de l'achat.
Mentions légales
Terrain proposé par un partenaire foncier selon disponibilités et autorisation de publicité au prix de 38 214 €. Hors droit d'enregistrement et frais de notaire. Terrain + Maison proposés au prix de 220 316 € (Hors branchements et raccordements, papiers peints, peintures, revêtement de sol dans les chambres. Tarif modifiable sans préavis). Etiquette énergie : A. Différents modèles disponibles pour ce terrain. Assurances et garanties du constructeur (RC professionnelle, décennale, dommage ouvrage, garantie de remboursement de l'acompte, livraison à prix et délai convenu) : https://www.maisons-france-confort.fr/mentions-legales/. HEXAOM Services est enregistré auprès de l'ORIAS en tant que Courtier en financement, Niveau 1, sous le numéro 14001345.Agence Maisons France Confort de Saint-Saturnin (72650)
- Téléphone :
- 02 43 28 07 61
- Adressse :
- 4 rue Joseph Caillaux
72650 Saint-Saturnin, France
