Maison neuve à
Ochancourt
(80210) Référence :
DD_eu44_15-0_1
Prix du projet : Maison avec Terrain
prix 151 200 €
- 3 pièces
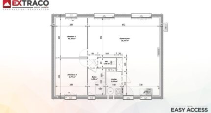
- 2 chambres
- Surface maison 65 m2
Ochancourt : maison de 3 pièces (65 m²) en vente
MAISON 3 PIÈCES NEUVE
À 16 km de la Manche, Les Maisons Extraco Eu vous propose cette maison de 3 pièces de plain-pied de 65 m² à Ochancourt (80210).
Elle comporte deux chambres, une cuisine et une salle de bains. Cette maison est neuve.
Le terrain de la propriété s'étend sur 860 m².
Les autoroutes A28 et A16 sont accessibles à moins de 15 km. Il y a un tennis dans les environs.
Son prix de vente est de 151 200 €.
Prenez contact avec notre agence (Delphine DERULLES : 06-67-13-79-40) pour tout renseignement sur cette maison ou sur les démarches à suivre. Les Maisons Extraco Eu est là pour vous accompagner à toutes les étapes de votre projet.