Maison neuve à
Onjon
(10220) Référence :
AC2439591_2
Prix du projet : Maison avec Terrain
prix 220 000 €
- 5 pièces
- 3 chambres
- Surface maison 85 m2
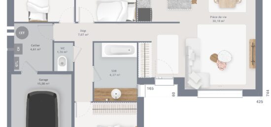
VENTE d'une maison de 5 pièces (85 m²) à Onjon
MAISON 5 PIÈCES NEUVE - PROCHE DE TROYES
À deux pas de Troyes, Maisons France Confort Troyes vous propose cette maison de 5 pièces de plain-pied de 85 m² à vendre à Onjon (10220).
Elle offre trois chambres, une cuisine et une salle de bains. La maison est neuve.
Le terrain de la propriété est de 1 053 m².
Il y a une école maternelle dans le quartier. On trouve un tennis dans les environs.
Elle est à vendre pour la somme de 220 000 €.
Prenez contact avec Alexandra COGLIATI (tél : 06-45-01-83-12) pour toute information sur la maison, sur les démarches à suivre ou sur les modalités de vente. Maisons France Confort Troyes vous accompagne dans tous vos projets immobiliers et dans toutes vos démarches.
Annonce proposée par un Agent Commercial Partenaire.
Mentions légales
Terrain proposé par un partenaire foncier selon disponibilités et autorisation de publicité au prix de 37 000 €. Hors droit d'enregistrement et frais de notaire. Terrain + Maison proposés au prix de 220 000 € (Hors branchements et raccordements, papiers peints, peintures, revêtement de sol dans les chambres. Tarif modifiable sans préavis). Etiquette énergie : A. Différents modèles disponibles pour ce terrain. Assurances et garanties du constructeur (RC professionnelle, décennale, dommage ouvrage, garantie de remboursement de l'acompte, livraison à prix et délai convenu) : https://www.maisons-france-confort.fr/mentions-legales/. HEXAOM Services est enregistré auprès de l'ORIAS en tant que Courtier en financement, Niveau 1, sous le numéro 14001345.Agence Maisons France Confort de Troyes (10000)
- Téléphone :
- 03 25 82 69 80
- Adressse :
- 142 Avenue Pierre Brossolette
10000 Troyes, France
