Maison neuve à
Orbec
(14290) Référence :
AV2238543_2
Prix du projet : Maison avec Terrain
prix 212 300 €
- 4 pièces
- 3 chambres
- Surface maison 97 m2
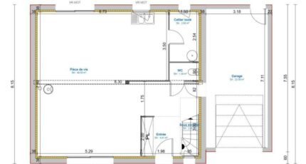
Maison de 97m² habitable avec garage accolé de 22m².
Entrée avec emplacement grand placard, séjour/salon lumineux avec cuisine ouverte, l'ensemble fait 48.50m², s'ajoute également un cellier.
A l'étage se trouve 3 chambres ainsi qu'une salle de bain.
Pour étudier votre projet de construction prenez rdv avec Mme Vaudry Angélique au 06.48.23.57.76
Mentions légales
Terrain proposé par un partenaire foncier selon disponibilités et autorisation de publicité au prix de 26 500 €. Hors droit d'enregistrement et frais de notaire. Maison proposée, avec un contrat de construction de maison individuelle, dans le cadre de la loi du 19/12/1990, au prix de 185 800 € (Hors branchements et raccordements, papiers peints, peintures, revêtement de sol dans les chambres, qui sont chiffrés dans les travaux qui restent à charge du client. Tarif modifiable sans préavis). Étiquette énergie : A. Différents modèles disponibles pour ce terrain. Assurances et garanties du constructeur comprises (RC professionnelle, décennale, dommage ouvrage).Agence Maisons France Confort de Lisieux (14100)
- Téléphone :
- 02 31 62 91 30
- Adressse :
- 41 boulevard Jeanne d'Arc
14100 Lisieux, France
