Maison neuve à
Orbec (14290) Référence : AV2238543_4

Prix du projet : Maison avec Terrain

prix 184 320 €

  • 6 pièces
  • 4 chambres
  • Surface maison 91 m2

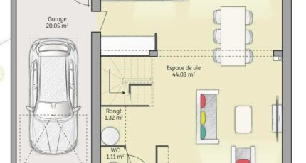
MAISONS FRANCE CONFORT LISIEUX VOUS PROPOSE DE CONSTRUIRE CETTE MAISON A ETAGE DE 91M²

ENTREE SUR UNE PIECE DE VIE DE + DE 40M² AVEC CUISINE OUVERTE, 4 CHAMBRES ET UNE SALLE DE BAIN.
UN GRAND GARAGE

POUR UNE ETUDE DE PROJET PRENDRE RDV AVEC ANGELIQUE 06.48.23.57.76

Mentions légales

Terrain proposé par un partenaire foncier selon disponibilités et autorisation de publicité au prix de 26 500 €. Hors droit d'enregistrement et frais de notaire. Maison proposée, avec un contrat de construction de maison individuelle, dans le cadre de la loi du 19/12/1990, au prix de 157 820 € (Hors branchements et raccordements, papiers peints, peintures, revêtement de sol dans les chambres, qui sont chiffrés dans les travaux qui restent à charge du client. Tarif modifiable sans préavis). Étiquette énergie : A. Différents modèles disponibles pour ce terrain. Assurances et garanties du constructeur comprises (RC professionnelle, décennale, dommage ouvrage).

Contactez l'agence de Lisieux

02 31 62 91 30

    * Champs obligatoires

    Vos informations sont traitées par HEXAOM et transmises à un conseiller commercial qui vous contactera afin de répondre à votre demande. Les plans et images présentés sur notre site sont la propriété d’HEXAOM et ne peuvent pas être reproduits sans son accord. Pour retrouver notre politique de protection des données personnelles et exercer vos droits conformément à la « loi informatique et liberté » cliquez-ici.