Maison neuve à
Orgeval
(78630) Référence :
CDS2452468_1
Prix du projet : Maison avec Terrain
prix 515 263 €
- 5 pièces
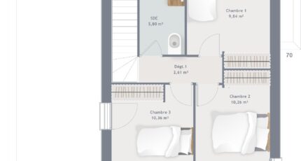
- 3 chambres
- Surface maison 90 m2
L'agence Maisons France Confort de Coignières propose ce magnifique projet, très attractif pour son lieu, ses prestations et son prix avec par exemple ce modèle R+1 (photo non contractuelle). Au rez-de-chaussée, une cuisine ouverte sur le séjour qui offre un espace de vie spacieux et harmonieux de plus de 35 m². Un cellier, un WC complètent ce rez-de-chaussée. La distribution de l'étage optimise l'espace autour d'un palier, 3 chambres, 1 salle de bains et 1 WC indépendant. Norme RE2020, chauffage PAC, plancher chauffant, domotique sur les volets roulants... Modèle personnalisable en fonction de votre mode de vie, vos envies et budget.
Les plus Maisons France Confort : une expérience solide de presque 100 ans, la maitrise de projets sur mesure, la sécurité du premier constructeur national.
Le prix de cette annonce inclus le terrain, le modèle de maison proposé en exemple ainsi que tous les frais de viabilisation, raccordements, évacuation de terres excédentaires, accès chantier etc...pour rappel les frais de notaire sur le terrain et les taxes, les clôtures, l'ameublement et la décoration ne sont pas inclus.
Pour d'avantage de précisions et pour un devis de construction personnalisé avant visite du terrain contactez votre agence Maisons France Confort de Coignières au 01.34.61.12.22 ou 06.27.06.74.64
Annonce proposée par un Agent Commercial Partenaire.
Mentions légales
Terrain proposé par un partenaire foncier selon disponibilités et autorisation de publicité au prix de 260 000 €. Hors droit d'enregistrement et frais de notaire. Terrain + Maison proposés au prix de 515 263 € (Hors branchements et raccordements, papiers peints, peintures, revêtement de sol dans les chambres. Tarif modifiable sans préavis). Etiquette énergie : A. Différents modèles disponibles pour ce terrain. Assurances et garanties du constructeur (RC professionnelle, décennale, dommage ouvrage, garantie de remboursement de l'acompte, livraison à prix et délai convenu) : https://www.maisons-france-confort.fr/mentions-legales/. HEXAOM Services est enregistré auprès de l'ORIAS en tant que Courtier en financement, Niveau 1, sous le numéro 14001345.Agence Maisons France Confort de Coignières (78310)
- Téléphone :
- 01 34 61 12 22
- Adressse :
- Domexpo Ouest
78310 Coignières, France
