Maison neuve à
Ormesson-sur-Marne
(94490) Référence :
FS2428338_2
Prix du projet : Maison avec Terrain
prix 414 000 €
- 5 pièces
- 3 chambres
- Surface maison 90 m2
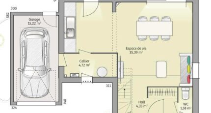
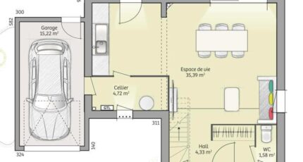
VENTE d'une maison F5 (90 m²) à Ormesson-sur-Marne
QUARTIER RECHERCHÉ - MAISON 5 PIÈCES NEUVE
Au pied de la station La Varenne-Chennevières du RER A (15 min de Paris), à vendre située dans un quartier attractif d'Ormesson-sur-Marne (94490), laissez vous charmer par cette maison de 5 pièces de 90 m² et de 280 m² de terrain. Son intérieur se divise en trois chambres, une cuisine et une salle de bains.
Cette maison possède 2 niveaux. Elle est neuve.
Cette maison est située dans un secteur convoité. Des écoles primaires se trouvent à moins de 10 minutes à pied, tout comme deux structures d'accueil pour les tout-petits. Niveau transports en commun, il y a les lignes de RER A, E, D et C ainsi que 18 gares à moins de 10 minutes en voiture. Il y a une bibliothèque, une boulangerie, des commerces, un supermarché, une poissonnerie et un bureau de poste à quelques minutes. Ne manquez pas le marché Rue du Centre chaque samedi matin.
Elle est à vendre pour la somme de 414 000 €.
Prenez contact avec Félix SOUMARMON (06-10-24-97-84) pour tout renseignement sur la maison ou sur les démarches à suivre.
Annonce proposée par un Agent Commercial Partenaire.
Mentions légales
Terrain proposé par un partenaire foncier selon disponibilités et autorisation de publicité au prix de 241 000 €. Hors droit d'enregistrement et frais de notaire. Terrain + Maison proposés au prix de 414 000 € (Hors branchements et raccordements, papiers peints, peintures, revêtement de sol dans les chambres. Tarif modifiable sans préavis). Etiquette énergie : A. Différents modèles disponibles pour ce terrain. Assurances et garanties du constructeur (RC professionnelle, décennale, dommage ouvrage, garantie de remboursement de l'acompte, livraison à prix et délai convenu) : https://www.maisons-france-confort.fr/mentions-legales/. HEXAOM Services est enregistré auprès de l'ORIAS en tant que Courtier en financement, Niveau 1, sous le numéro 14001345.Agence Maisons France Confort de Magny-le-Hongre (77700)
- Téléphone :
- 01 84 80 92 96
- Adressse :
- 11 rue de Courtalin
77700 Magny-le-Hongre, France
