Maison neuve à
Ozillac (17500) Référence : DB2386639_2

Prix du projet : Maison avec Terrain

prix 200 000 €

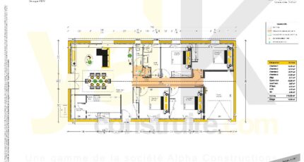
  • 5 pièces
  • 4 chambres
  • Surface maison 125 m2

Maison 5 pièces
Alpha Constructions Jonzac vous présente cette maison de 5 pièces de plain-pied de 125 m². Elle est composée de quatre chambres, d'une cuisine, un garage et d'une salle de bain.
Terrain de 2500 m² en vente
Découvrez ce terrain de 2500 m², exposé plein ouest et proche des écoles du primaire et du secondaire qui sont implantées à moins de 10 minutes en voiture. Côté transports, on trouve la gare Jonzac à proximité ainsi que toutes les commodités de cette commune.
Ce terrain est proposé à l'achat pour 40 000 €. Contactez notre agence (BOUYER Dylan : O6-78-O8-19-73) pour obtenir de plus amples informations sur le terrain. Alpha Constructions Jonzac est là pour vous accompagner dans toutes vos démarches.

Mentions légales

Terrain proposé par un partenaire foncier selon disponibilité dans le cadre d’un projet de construction avec Alpha Constructions. Les descriptions, photographies, surfaces et prix illustrant l’annonce sont fournies à titre indicatif et ne sont pas contractuels. Non soumis au DPE. Différents modèles disponibles.

Contactez l'agence de Jonzac

05 46 86 66 84

    * Champs obligatoires

    Vos informations sont traitées par HEXAOM et transmises à un conseiller commercial qui vous contactera afin de répondre à votre demande. Les plans et images présentés sur notre site sont la propriété d’HEXAOM et ne peuvent pas être reproduits sans son accord. Pour retrouver notre politique de protection des données personnelles et exercer vos droits conformément à la « loi informatique et liberté » cliquez-ici.