Maison neuve à
Palaiseau
(91120) Référence :
FB2365238_1
Prix du projet : Maison avec Terrain
prix 359 000 €
- 5 pièces
- 3 chambres
- Surface maison 80 m2
Venez concevoir votre future maison sur mesure chez MAISONS FRANCE CONFORT de LA VILLE DU BOIS
Exemple de projet (visuels extérieurs similaires) 80 m² : un rez-de-chaussée d'un hall d'entrée avec rangements, d'un très bel espace de vie entièrement ouvert, spacieux et lumineux grâce à de belles ouvertures, d'un cellier/buanderie, d'un WC, garage en option.
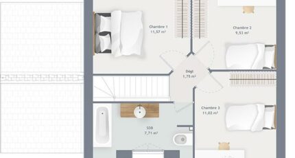
A l'étage une mezzanine desservant 3 belles chambres avec rangement et d'une salle de bains, 1 salle d'eau avec WC séparé.
De nombreuses prestations incluses: tuiles en terre cuite, menuiseries couleur, volets motorisés et centralisés (coffret non visible intégré dans le mur), pack domotique, RDC et pièces d'eau carrelage imitation parquet, construction en brique, charpente traditionnelle, RE 2020, assurances incluses et raccordements.
Financez ce bien à l'aide du Prêt à Taux Zéro.
Prenez rendez-vous en appelant l'agence MAISONS FRANCE CONFORT de la VILLE du BOIS au 01/64/49/72/36
Annonce proposée par un Agent Commercial Partenaire.
Mentions légales
Terrain proposé par un partenaire foncier selon disponibilités et autorisation de publicité au prix de 170 000 €. Hors droit d'enregistrement et frais de notaire. Terrain + Maison proposés au prix de 189 000 € (Hors branchements et raccordements, papiers peints, peintures, revêtement de sol dans les chambres. Tarif modifiable sans préavis). Etiquette énergie : A. Différents modèles disponibles pour ce terrain. Assurances et garanties du constructeur (RC professionnelle, décennale, dommage ouvrage, garantie de remboursement de l'acompte, livraison à prix et délai convenu) : https://www.maisons-france-confort.fr/mentions-legales/. HEXAOM Services est enregistré auprès de l'ORIAS en tant que Courtier en financement, Niveau 1, sous le numéro 14001345.Agence Maisons France Confort de La Ville-du-Bois (91620)
- Téléphone :
- 01 64 49 72 36
- Adressse :
- Domexpo Sud - RN 20
91620 La Ville-du-Bois, France
