Maison neuve à 
  Panazol
 (87350)  Référence :
 MN2314137_1 
Prix du projet : Maison avec Terrain
prix 450 000 €
- 6 pièces
- 4 chambres
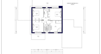
- Surface maison 153 m2
VENTE d'une maison de 6 pièces (153 m²) à Panazol
Votre futur maison vous attend à Panazol, dans un cadre verdoyant à seulement 2 minutes du centre ville de Panazol.
Sur un terrain de 1300 m2 exposé Sud-Est, nous vous proposons ce projet de construction moderne comprenant: 
- Une belle pièce de vie lumineuse 
- 4 chambres dont une suite parentale. 
- Un garage double, selon vos envies. 
Maison conforme à la RE2020 garantissant confort et une performance énergétique toute l'année. 
Garanties techniques et financières. 
Projet de construction au prix de 450 000€
Plans personnalisables selon vos besoins et votre mode de vie. 
Contactez nous pour plus de renseignements ou pour une étude gratuite et personnalisée de votre future maison. 
Marion NOBLET 06-46-71-91-04 
Concrétisez vos projets immobiliers avec Maisons Millot Limoges.
Mentions légales
Terrain proposé par un partenaire foncier selon disponibilités et autorisation de publicité au prix de 65 000 €. Hors droit d'enregistrement et frais de notaire. Maison proposée, avec un contrat de construction de maison individuelle, dans le cadre de la loi du 19/12/1990, au prix de 385 000 € (Hors branchements et raccordements, papiers peints, peintures, revêtement de sol dans les chambres, qui sont chiffrés dans les travaux qui restent à charge du client. Tarif modifiable sans préavis). Étiquette énergie : A. Différents modèles disponibles pour ce terrain. Assurances et garanties du constructeur comprises (RC professionnelle, décennale, dommage ouvrage).Agence Maisons Millot de Limoges (87000)
- Téléphone :
- 05 55 01 78 78
- Adressse :
-  83 Rue Henri Giffard
 87000 Limoges, France
 
  
  
  
  
 