Maison neuve à
Pardies
(64150) Référence :
JNA2394327_3
Prix du projet : Maison avec Terrain
prix 340 000 €
- 5 pièces
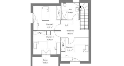
- 4 chambres
- Surface maison 116 m2
Pardies : maison T5 (116 m²) à vendre
IDÉALEMENT SITUÉE - MAISON 5 PIÈCES NEUVE
À vendre : localisée proche de l'Espagne et à 21 km de Pau, idéalement située dans Pardies (64150), nous sommes ravis de vous présenter cette maison de 5 pièces de 116 m². Son intérieur compte quatre chambres, une cuisine et deux salles de bains.
Le terrain du bien est de 580 m².
Cette maison comporte 2 niveaux. Elle est neuve.
Elle se trouve dans un quartier recherché. On y trouve une école primaire. Niveau transports, il y a la gare Artix à moins de 10 minutes en voiture. L'autoroute A64 est accessible à 4 km. On trouve une bibliothèque, un tennis, deux boulangeries, trois commerces et une épicerie à quelques minutes du logement.
Elle est à vendre pour la somme de 340 000 €.
Prenez contact avec Jean-Noel ANDERE (05-59-32-12-24) pour obtenir de plus amples renseignements sur cette maison. Maisons Bruno Petit GHPA Lons est là pour vous accompagner dans tous vos projets immobiliers.
Mentions légales
Terrain proposé par un partenaire foncier selon disponibilités et autorisation de publicité au prix de 71 000 €. Hors droit d'enregistrement et frais de notaire. Terrain + Maison proposés au prix de 340 000 € (Hors branchements et raccordements, papiers peints, peintures, revêtement de sol dans les chambres. Tarif modifiable sans préavis). Etiquette énergie : A. Différents modèles disponibles pour ce terrain. Assurances et garanties du constructeur (RC professionnelle, décennale, dommage ouvrage, garantie de remboursement de l'acompte, livraison à prix et délai convenu) : https://www.maisons-bruno-petit.com/mentions-legales/.Agence Bruno Petit GHPA de Lons (64140)
- Téléphone :
- 05 59 32 12 24
- Adressse :
- 8 Allée du Tauzin
64140 Lons, France