Maison neuve à
Parentis-en-Born
(40160) Référence :
AD2405077_1
Prix du projet : Maison avec Terrain
prix 395 820 €
- 5 pièces
- 4 chambres
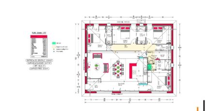
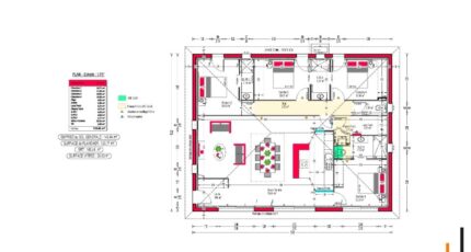
- Surface maison 120 m2
Maison neuve 120 m² - 4 chambres - Style fonctionnel avec touche bois
Découvrez cette maison contemporaine de 120 m², pensée pour allier confort, fonctionnalité et chaleur du bois, idéale pour une vie de famille épanouie.
✨ Caractéristiques :
Grande pièce de vie lumineuse avec séjour / salle à manger
Cuisine ouverte moderne et conviviale
4 chambres confortables, dont une suite parentale
Salle de bains familiale + WC séparés
Rangements optimisés pour chaque espace
Finitions avec une pointe de bois, pour un intérieur chaleureux et personnalisé
🔧 Projet adaptable :
Vous pouvez personnaliser les plans, l'agencement intérieur et les finitions selon vos envies et votre budget.
📞 Contact : Angélique Dangoumau - O6 89 19 34 27
Idéal pour un premier achat ou une famille à la recherche d'une maison clé en main.
Mentions légales
Terrain proposé par un partenaire foncier selon disponibilité dans le cadre d’un projet de construction avec Couleur Villas. Les descriptions, photographies, surfaces et prix illustrant l’annonce sont fournies à titre indicatif et ne sont pas contractuels. Non soumis au DPE. Différents modèles disponibles.Agence Couleur Villas de Biscarrosse (40600)
- Téléphone :
- 05 58 08 20 04
- Adressse :
- 30 Allée de Gelous
40600 Biscarrosse, France