Maison neuve à
Paulhac (31380) Référence : XF2435186_1

Prix du projet : Maison avec Terrain

prix 323 903 €

  • 6 pièces
  • 5 chambres
  • Surface maison 125 m2

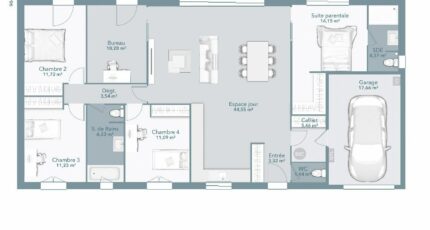
L'agence Maisons France Confort d'AUCAMVILLE a imaginé pour vous cette maison neuve RE 2020 de 125m² à 5 minutes de PAULHAC . Sur une parcelle de 1300 m², le modèle présenté est OPTIMA 125. Conception traditionnelle de plain-pied, entièrement personnalisable, composée d'une entrée, d'une pièce de vie avec séjour et cuisine de plus de 44m², d'un cellier, de 4 chambres dont une suite parentale en option (dressing + sde), d'une salle de bains et WC indépendant. Le garage de 17m² est intégré à la maison.
Au calme, à seulement 5 minutes des commodités et Toulouse accessible en 20 minutes.
Votre conseiller de l'agence Maisons France Confort d'AUCAMVILLE est à votre disposition au 05 34 43 84 38 .
PRIX : 323 903 € HF

Annonce proposée par un Agent Commercial Partenaire.

Mentions légales

Terrain proposé par un partenaire foncier selon disponibilités et autorisation de publicité au prix de 130 000 €. Hors droit d'enregistrement et frais de notaire. Terrain + Maison proposés au prix de 323 903 € (Hors branchements et raccordements, papiers peints, peintures, revêtement de sol dans les chambres. Tarif modifiable sans préavis). Etiquette énergie : A. Différents modèles disponibles pour ce terrain. Assurances et garanties du constructeur (RC professionnelle, décennale, dommage ouvrage, garantie de remboursement de l'acompte, livraison à prix et délai convenu) : https://www.maisons-france-confort.fr/mentions-legales/. HEXAOM Services est enregistré auprès de l'ORIAS en tant que Courtier en financement, Niveau 1, sous le numéro 14001345.

Contactez l'agence de Aucamville

05 34 43 84 38

    * Champs obligatoires

    Vos informations sont traitées par HEXAOM et transmises à un conseiller commercial qui vous contactera afin de répondre à votre demande. Les plans et images présentés sur notre site sont la propriété d’HEXAOM et ne peuvent pas être reproduits sans son accord. Pour retrouver notre politique de protection des données personnelles et exercer vos droits conformément à la « loi informatique et liberté » cliquez-ici.