Maison neuve à
Pecquencourt
(59146) Référence :
MK2422966_4
Prix du projet : Maison avec Terrain
prix 235 600 €
- 4 pièces
- 3 chambres
- Surface maison 92 m2
EMPLACEMENT PRIVILÉGIÉ - MAISON NEUVE A CONSTRUIRE
VOTRE CONSEILLER : Maxime KENNEDY - O6 14 84 91 64
Venez découvrir votre future maison neuve sur la commune de Pecquencourt.
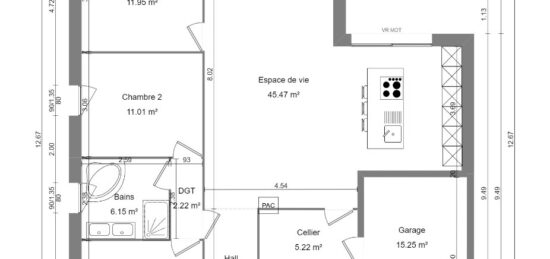
Il s'agit d'une maison de 4 pièces type comble aménagé d'une surface de 92,5 m² habitable + 15 m² de garage.
Cette maison dispose d'un grand espace de vie ouvert et lumineux, de trois chambres, d'un garage intégré avec un cellier attenant.
Sa composition lui permettra de s'adapter sur quasi la totalité des configurations de terrains (petite façade).
Construction conforme aux dernières normes RE2020 (basse consommation) sur une base de mur composite (mur en bio bric de 20 cm + vide d'air + briques moulées-mains).
Mode de chauffage dernière génération via pompe à chaleur air / air.
Plans sur mesures et modifiables à la demande.
Garanties et assurances obligatoires incluses (voir détails en agence).
Hors raccordements, hors branchements, hors frais de notaire sur le terrain.
Terrain sélectionné et vu pour vous sous réserve de disponibilité et au prix indiqué par notre partenaire foncier.
La maison est située dans un quartier recherché proche de Rieulay, Somain, Bruille-lez-Marchiennes, Lallaing, Vred, Masny, Loffre, Marchiennes, Douai, Valenciennes, Cambrai, Lille, etc
A proximité des écoles et commerces de proximités.
Son prix de vente est de 235 600 €.
Projet éligible à la TVA 5,5% (éligibilité et conditions sur simple rendez-vous).
Contactez Maxime Kennedy (O6 14 84 91 64) pour toute information sur cette maison.
Pourquoi faire confiance à Maisons France confort ?
Maisons France Confort c'est le numéro 1 en France de la construction de maisons individuelles avec nos maisons personnalisables et qui s'adaptent à chaque budget.
C'est un accompagnement personnel dans toutes les démarches et étapes de votre projet immobilier (terrain, maison et financement entre autres).
Ensemble, construisons la maison qui vous ressemble !
Annonce proposée par un Agent Comm
Mentions légales
Terrain proposé par un partenaire foncier selon disponibilités et autorisation de publicité au prix de 78 500 €. Hors droit d'enregistrement et frais de notaire. Terrain + Maison proposés au prix de 235 600 € (Hors branchements et raccordements, papiers peints, peintures, revêtement de sol dans les chambres. Tarif modifiable sans préavis). Etiquette énergie : A. Différents modèles disponibles pour ce terrain. Assurances et garanties du constructeur (RC professionnelle, décennale, dommage ouvrage, garantie de remboursement de l'acompte, livraison à prix et délai convenu) : https://www.maisons-france-confort.fr/mentions-legales/. HEXAOM Services est enregistré auprès de l'ORIAS en tant que Courtier en financement, Niveau 1, sous le numéro 14001345.Agence Maisons France Confort de Valenciennes (59300)
- Téléphone :
- 03 27 09 13 49
- Adressse :
- 1, Boulevard Saly
59300 Valenciennes, France
