Maison neuve à
Pecquencourt (59146) Référence : DC2427957_1

Prix du projet : Maison avec Terrain

prix 249 600 €

  • 4 pièces
  • 3 chambres
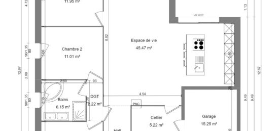
  • Surface maison 85 m2

À VENDRE - Maison neuve F4 de plain-pied à Pecquencourt (59146) - 85 m²

Proche de Villeneuve-d'Ascq - 3 chambres - Terrain 803 m²

À Pecquencourt, à quelques kilomètres de la Belgique et à proximité immédiate de Villeneuve-d'Ascq, découvrez cette maison neuve de plain-pied de 85 m², idéale pour une famille ou un premier achat.

🏠 Descriptif du bien

🛏️ 3 chambres

🍽️ Cuisine

🚿 Salle de bains

🌿 Terrain de 803 m², parfait pour un jardin ou une terrasse

📍 Environnement & commodités

Écoles et crèche à moins de 10 minutes à pied :

École Maternelle Suzanne Lanoy

Lycée Général Privé Institut d'Anchin

École Primaire Langevin-Wallon

Crèche / structure d'accueil pour enfants

Cinq gares à moins de 10 minutes en voiture

Accès rapide à l'autoroute A21 (1 km)

Commerces à proximité : supermarché, boulangeries, boucheries-charcuteries, bureau de poste

💶 Prix de vente : 249 600 €

📞 Contact : David Chambault - 06 47 48 05 47
Maisons France Confort Lille vous accompagne à toutes les étapes de votre projet immobilier, du conseil jusqu'à la concrétisation de votre achat.

Mentions légales

Terrain proposé par un partenaire foncier selon disponibilités et autorisation de publicité au prix de 78 500 €. Hors droit d'enregistrement et frais de notaire. Terrain + Maison proposés au prix de 249 600 € (Hors branchements et raccordements, papiers peints, peintures, revêtement de sol dans les chambres. Tarif modifiable sans préavis). Etiquette énergie : A. Différents modèles disponibles pour ce terrain. Assurances et garanties du constructeur (RC professionnelle, décennale, dommage ouvrage, garantie de remboursement de l'acompte, livraison à prix et délai convenu) : https://www.maisons-france-confort.fr/mentions-legales/. HEXAOM Services est enregistré auprès de l'ORIAS en tant que Courtier en financement, Niveau 1, sous le numéro 14001345.

Contactez l'agence de Lille

03 20 48 50 23

    * Champs obligatoires

    Vos informations sont traitées par HEXAOM et transmises à un conseiller commercial qui vous contactera afin de répondre à votre demande. Les plans et images présentés sur notre site sont la propriété d’HEXAOM et ne peuvent pas être reproduits sans son accord. Pour retrouver notre politique de protection des données personnelles et exercer vos droits conformément à la « loi informatique et liberté » cliquez-ici.