Maison neuve à
Pecqueuse
(91470) Référence :
SA2416169_2
Prix du projet : Maison avec Terrain
prix 390 800 €
- 6 pièces
- 5 chambres
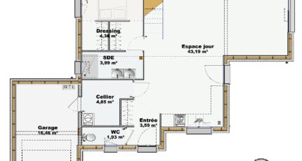
- Surface maison 114 m2
VENTE d'une maison de 6 pièces (114 m²) à Pecqueuse
MAISON 6 PIÈCES NEUVE
À vendre : à proximité du RER B (station Saint-Rémy-lès-Chevreuse, 35 min de Paris), à Pecqueuse (91470), nous sommes heureux de vous présenter cette maison de 6 pièces de 114 m². Elle comporte cinq chambres, une cuisine et deux salles de bains.
Le terrain de la maison est de 403 m².
C'est une maison de 2 niveaux. Elle est neuve.
Une école primaire est implantée dans le quartier. Niveau transports en commun, il y a la ligne de RER B (Saint-Rémy-Lès-Chevreuse) à moins de 10 minutes en voiture. On trouve un tennis et une boucherie-charcuterie à proximité.
Son prix de vente est de 390 800 €.
N'hésitez pas à prendre contact avec notre agence (AUGUSTINE Sabrina : 06-23-03-68-32) pour plus de renseignements sur cette maison, sur les modalités de vente ou sur les démarches à suivre. Maisons France Confort Ris-Orangis vous accompagne à toutes les étapes de l'achat et dans tous vos projets immobiliers.
Mentions légales
Terrain proposé par un partenaire foncier selon disponibilités et autorisation de publicité au prix de 175 000 €. Hors droit d'enregistrement et frais de notaire. Terrain + Maison proposés au prix de 390 800 € (Hors branchements et raccordements, papiers peints, peintures, revêtement de sol dans les chambres. Tarif modifiable sans préavis). Etiquette énergie : A. Différents modèles disponibles pour ce terrain. Assurances et garanties du constructeur (RC professionnelle, décennale, dommage ouvrage, garantie de remboursement de l'acompte, livraison à prix et délai convenu) : https://www.maisons-france-confort.fr/mentions-legales/. HEXAOM Services est enregistré auprès de l'ORIAS en tant que Courtier en financement, Niveau 1, sous le numéro 14001345.Agence Maisons France Confort de Ris-Orangis (91130)
- Téléphone :
- 01 60 47 83 15
- Adressse :
- 57 rue Albert Rémy
91130 Ris-Orangis, France
