Maison neuve à
Pelleport
(31480) Référence :
CE2406712_2
Prix du projet : Maison avec Terrain
prix 380 478 €
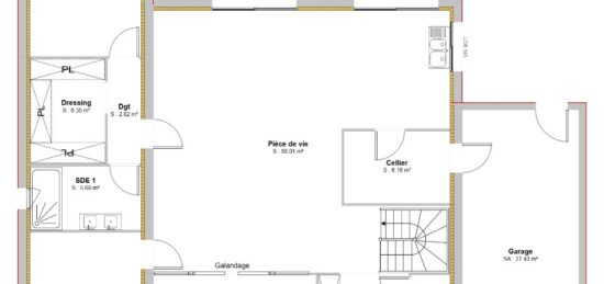
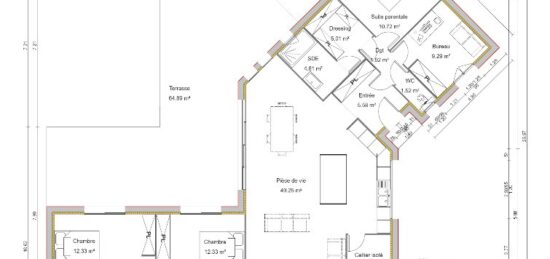
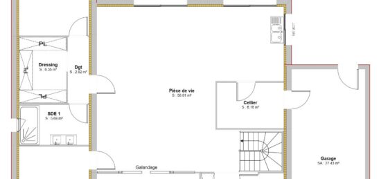
- 6 pièces
- 4 chambres
- Surface maison 166 m2
VENTE d'une maison de 6 pièces (166 m²) à Pelleport avec Maisons France Confort de Tournefeuille au 05.61.16.47.77
EMPLACEMENT PRIVILÉGIÉ - MAISON 6 PIÈCES NEUVE
À vendre : à quelques kilomètres de Toulouse, nous sommes ravis de vous proposer cette maison de 6 pièces de 166 m² et de 1 000 m² de terrain bénéficiant d'un emplacement privilégié dans Pelleport (31480). Elle propose quatre chambres, une cuisine et deux salles de bains.
C'est une maison de 2 niveaux. Elle est neuve.
Cette maison se situe dans un secteur convoité. On y trouve une école primaire. Il y a un accès à la nationale N124 à 16 km.
Elle est à vendre pour la somme de 380 478 €.
Prenez contact avec Maisons France Confort de Tournefeuille au 05.61.16.47.77 pour toute question sur la maison. Maisons France Confort Tournefeuille est là pour vous accompagner dans tous vos projets immobiliers.
Annonce proposée par un Agent Commercial Partenaire.
Mentions légales
Terrain proposé par un partenaire foncier selon disponibilités et autorisation de publicité au prix de 53 000 €. Hors droit d'enregistrement et frais de notaire. Terrain + Maison proposés au prix de 380 478 € (Hors branchements et raccordements, papiers peints, peintures, revêtement de sol dans les chambres. Tarif modifiable sans préavis). Etiquette énergie : A. Différents modèles disponibles pour ce terrain. Assurances et garanties du constructeur (RC professionnelle, décennale, dommage ouvrage, garantie de remboursement de l'acompte, livraison à prix et délai convenu) : https://www.maisons-france-confort.fr/mentions-legales/. HEXAOM Services est enregistré auprès de l'ORIAS en tant que Courtier en financement, Niveau 1, sous le numéro 14001345.Agence Maisons France Confort de Tournefeuille (31170)
- Téléphone :
- 05 61 16 47 77
- Adressse :
- 114 chemin de Larramet
31170 Tournefeuille, France
