Maison neuve à
Périgueux (24000) Référence : BV2317845_1

Prix du projet : Maison avec Terrain

prix 333 340 €

  • 5 pièces
  • 4 chambres
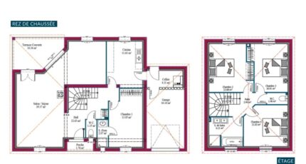
  • Surface maison 130 m2

VENTE : maison de 5 pièces (130 m²) à Marsac-sur-l'Isle
PROCHE DE PÉRIGUEUX - MAISON 5 PIÈCES NEUVE
À vendre à 5 km de Périgueux, Maisons de la Côte Atlantique Notre Dame de Sanilhac vous présente cette maison de 5 pièces de 130 m² à Marsac-sur-l'Isle (24430). Son intérieur comporte quatre chambres, une cuisine et deux salles de bains.
Le terrain de la propriété s'étend sur 998 m².
Il s'agit d'une maison de 2 niveaux. Elle est neuve.
Il y a une école maternelle dans le quartier. Niveau transports, on trouve la gare La Cave à moins de 10 minutes à pied. Il y a un accès à l'autoroute A89 à 7 km. Il y a deux commerces à quelques minutes.
Elle est proposée à l'achat pour 333 340 €.
Contactez Bruno VERGNAUD (06-85-43-32-95) pour toute information sur cette maison ou sur les modalités de vente. Maisons de la Côte Atlantique Notre Dame de Sanilhac vous accompagne à toutes les étapes de votre projet et dans tous vos projets immobiliers.

Contactez l'agence de Notre-Dame-de-Sanilhac

05 53 45 89 88

    * Champs obligatoires

    Vos informations sont traitées par HEXAOM et transmises à un conseiller commercial qui vous contactera afin de répondre à votre demande. Les plans et images présentés sur notre site sont la propriété d’HEXAOM et ne peuvent pas être reproduits sans son accord. Pour retrouver notre politique de protection des données personnelles et exercer vos droits conformément à la « loi informatique et liberté » cliquez-ici.