Maison neuve à
Perpignan (66000) Référence : YT2248104_1

Prix du projet : Maison avec Terrain

prix 780 000 €

  • 5 pièces
  • 3 chambres
  • Surface maison 150 m2

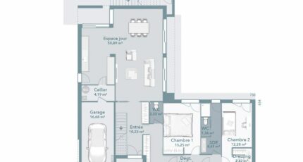
VENTE d'une maison F5 (150 m²) à Perpignan
EMPLACEMENT PRIVILÉGIÉ - MAISON 5 PIÈCES NEUVE
En vente : à 17 km de la mer Méditerranée et à moins de 28 km de l'Espagne, nous sommes heureux de vous présenter cette maison de 5 pièces de 150 m² bénéficiant d'un emplacement d'exception dans Perpignan (66000).
Il s'agit d'une maison de 2 niveaux. Son intérieur se divise en trois chambres, une cuisine et deux salles de bains. Cette maison est neuve.
Le terrain de la propriété s'étend sur 2 250 m².
Elle est située dans un secteur prisé. Il y a des établissements scolaires (de la maternelle au lycée) à moins de 10 minutes à pied. Côté transports en commun, on trouve les gares Perpignan, Rivesaltes et Le Soler à moins de 10 minutes en voiture. L'autoroute A9 et la nationale N116 sont accessibles à moins de 7 km. Il y a un bassin de natation, un tennis, quatre boulangeries, des commerces, quatre boucheries-charcuteries, une poissonnerie et des épiceries dans les environs.
Elle est à vendre pour la somme de 780 000 €.
Contactez notre agence (Yohan TOURSEL : 06-13-67-08-53) pour toute information sur la maison. Maisons France Confort Perpignan est là pour vous accompagner dans tous vos projets immobiliers.

Mentions légales

Terrain proposé par un partenaire foncier selon disponibilités et autorisation de publicité au prix de 330 000 €. Hors droit d'enregistrement et frais de notaire. Maison proposée, avec un contrat de construction de maison individuelle, dans le cadre de la loi du 19/12/1990, au prix de 450 000 € (Hors branchements et raccordements, papiers peints, peintures, revêtement de sol dans les chambres, qui sont chiffrés dans les travaux qui restent à charge du client. Tarif modifiable sans préavis). Étiquette énergie : A. Différents modèles disponibles pour ce terrain. Assurances et garanties du constructeur comprises (RC professionnelle, décennale, dommage ouvrage).

Contactez l'agence de Perpignan

04 68 68 20 75

    * Champs obligatoires

    Vos informations sont traitées par HEXAOM et transmises à un conseiller commercial qui vous contactera afin de répondre à votre demande. Les plans et images présentés sur notre site sont la propriété d’HEXAOM et ne peuvent pas être reproduits sans son accord. Pour retrouver notre politique de protection des données personnelles et exercer vos droits conformément à la « loi informatique et liberté » cliquez-ici.