Maison neuve à
Piacé
(72170) Référence :
ERM2320003_2
Prix du projet : Maison avec Terrain
prix 137 000 €
- 3 pièces
- 2 chambres
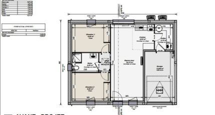
- Surface maison 55 m2
Maison T3 (55 m²) à vendre à Piacé
PROCHE GARE - MAISON 3 PIÈCES NEUVE
À vendre à 19 km d'Alençon, nous vous présentons cette maison de 3 pièces de plain-pied de 55 m², proche de la gare de Piacé (72170).
Conçue de plain-pied, elle dispose de deux chambres, d'une cuisine et d'une salle de bains. Cette maison est neuve.
Le terrain de la propriété est de 886 m².
Une école primaire est implantée dans le quartier. Côté transports, on trouve deux gares (Vivoin-Beaumont et La Hutte Coulombiers) à moins de 10 minutes en voiture. Il y a un accès à l'autoroute A28 à 6 km.
Elle est proposée à l'achat pour 137 000 €.
N'hésitez pas à prendre contact avec Elisa RODRIGUES MORAIS (06-25-94-60-52) pour toute question sur la propriété ou sur les modalités de vente. Maisons France Confort Saint-Saturnin est là pour vous accompagner à toutes les étapes de l'achat.
Mentions légales
Terrain proposé par un partenaire foncier selon disponibilités et autorisation de publicité au prix de 23 400 €. Hors droit d'enregistrement et frais de notaire. Terrain + Maison proposés au prix de 113 600 € (Hors branchements et raccordements, papiers peints, peintures, revêtement de sol dans les chambres. Tarif modifiable sans préavis). Etiquette énergie : A. Différents modèles disponibles pour ce terrain. Assurances et garanties du constructeur (RC professionnelle, décennale, dommage ouvrage, garantie de remboursement de l'acompte, livraison à prix et délai convenu) : https://www.maisons-france-confort.fr/mentions-legales/. HEXAOM Services est enregistré auprès de l'ORIAS en tant que Courtier en financement, Niveau 1, sous le numéro 14001345.Agence Maisons France Confort de Alençon (61000)
- Téléphone :
- 02 33 82 93 12
- Adressse :
- 148 Avenue Rhin et Danube
61000 Alençon, France
