Maison neuve à
Pibrac (31820) Référence : SP2391354_4

Prix du projet : Maison avec Terrain

prix 312 000 €

  • 4 pièces
  • 3 chambres
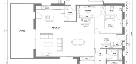
  • Surface maison 81 m2

À Pibrac, proche du centre, dans un secteur résidentiel recherché, découvrez ce terrain à bâtir de 590 m², idéalement situé à proximité immédiate des commerces, écoles et services, tout en offrant un cadre de vie calme et agréable.

Nous vous proposons un projet de construction d'une maison de plain-pied d'environ 100 m² habitables maximum, avec garage, pensé pour offrir des espaces fonctionnels, lumineux et confortables. Cette maison est entièrement personnalisable afin de s'adapter à votre mode de vie et à vos envies.

Ce projet terrain + maison est proposé avec les frais annexes, comprenant notamment :
frais de notaire, raccordements, viabilisation hors finitions comme : cuisine et peinture.

Terrain proposé dans le cadre d'un projet de construction avec Maisons France Confort Tournefeuille.
Et nous étudierons ensemble votre projet de maison personnalisée sur ce terrain, avant toute mise en relation avec notre partenaire foncier.

Pour plus d'informations ou pour étudier votre projet, contactez Maisons France Confort Tournefeuille au 05 61 16 47 77.

Annonce proposée par un Agent Commercial Partenaire.

Mentions légales

Terrain proposé par un partenaire foncier selon disponibilités et autorisation de publicité au prix de 129 000 €. Hors droit d'enregistrement et frais de notaire. Terrain + Maison proposés au prix de 312 000 € (Hors branchements et raccordements, papiers peints, peintures, revêtement de sol dans les chambres. Tarif modifiable sans préavis). Etiquette énergie : A. Différents modèles disponibles pour ce terrain. Assurances et garanties du constructeur (RC professionnelle, décennale, dommage ouvrage, garantie de remboursement de l'acompte, livraison à prix et délai convenu) : https://www.maisons-france-confort.fr/mentions-legales/. HEXAOM Services est enregistré auprès de l'ORIAS en tant que Courtier en financement, Niveau 1, sous le numéro 14001345.

Contactez l'agence de Tournefeuille

05 61 16 47 77

    * Champs obligatoires

    Vos informations sont traitées par HEXAOM et transmises à un conseiller commercial qui vous contactera afin de répondre à votre demande. Les plans et images présentés sur notre site sont la propriété d’HEXAOM et ne peuvent pas être reproduits sans son accord. Pour retrouver notre politique de protection des données personnelles et exercer vos droits conformément à la « loi informatique et liberté » cliquez-ici.