Maison neuve à
Pierres
(28130) Référence :
YB2425101_1
Prix du projet : Maison avec Terrain
prix 220 000 €
- 6 pièces
- 4 chambres
- Surface maison 91 m2
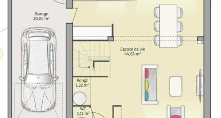
VENTE : maison F6 (91 m²) à Pierres
IDÉALEMENT SITUÉE - MAISON 6 PIÈCES NEUVE
À vendre à 16 km de Chartres, notre agence Maisons France Confort Limay est ravie de vous proposer cette maison de 6 pièces de 91 m² avec vue sur espace vert idéalement située dans Pierres (28130).
Il s'agit d'une maison de 2 niveaux. Elle compte quatre chambres, une cuisine et une salle de bains. Cette maison est neuve.
Le terrain de la propriété s'étend sur 400 m².
La propriété se trouve dans un secteur prisé. Il y a l'École Élémentaire la Clé des Champs, l'École Maternelle la Clef des Champs et le Lycée Professionnel Privé Françoise d'Aubigne à moins de 10 minutes à pied et une crèche. Niveau transports, on trouve quatre gares à moins de 10 minutes en voiture. Il y a un accès à la nationale N154 à 10 km. Il y a un tennis, trois boulangeries, un supermarché, des commerces, deux épiceries et deux boucheries-charcuteries dans les environs.
Son prix de vente est de 220 000 €.
Contactez notre agence (Yassine BOUSELSELA : 06-14-36-81-09) pour toute information sur la maison.
Mentions légales
Terrain proposé par un partenaire foncier selon disponibilités et autorisation de publicité au prix de 60 000 €. Hors droit d'enregistrement et frais de notaire. Terrain + Maison proposés au prix de 220 000 € (Hors branchements et raccordements, papiers peints, peintures, revêtement de sol dans les chambres. Tarif modifiable sans préavis). Etiquette énergie : A. Différents modèles disponibles pour ce terrain. Assurances et garanties du constructeur (RC professionnelle, décennale, dommage ouvrage, garantie de remboursement de l'acompte, livraison à prix et délai convenu) : https://www.maisons-france-confort.fr/mentions-legales/. HEXAOM Services est enregistré auprès de l'ORIAS en tant que Courtier en financement, Niveau 1, sous le numéro 14001345.Agence Maisons France Confort de Limay (78520)
- Téléphone :
- 01 30 33 96 64
- Adressse :
- 3 place de la libération
78520 Limay, France
