Maison neuve à
Pinet (34850) Référence : MM2466434_6

Prix du projet : Maison avec Terrain

prix 390 000 €

  • 6 pièces
  • 4 chambres
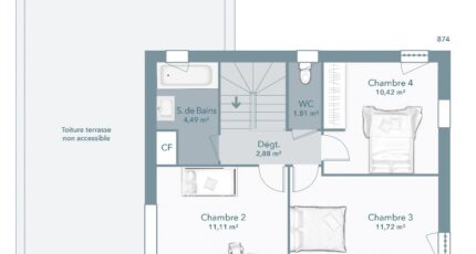
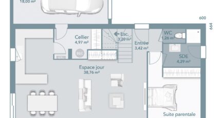
  • Surface maison 110 m2

Projet de construction. Pinet : maison F6 (110 m²) à vendre
PROCHE DE BÉZIERS - MAISON 6 PIÈCES NEUVE
En vente : localisée à 10 km de la mer Méditerranée et à 24 km de Béziers, à Pinet (34850), notre agence Maisons France Confort Clermont-l'Hérault est ravie de vous présenter cette maison de 6 pièces de 110 m².
Cette maison possède 2 niveaux. Son intérieur comporte quatre chambres, une cuisine et deux salles de bains. La maison est neuve.
Le terrain du bien s'étend sur 441 m².
Il y a l'École Primaire Via Domitia à moins de 10 minutes à pied. Niveau transports en commun, on trouve la gare Marseillan Plage à moins de 10 minutes en voiture. Les autoroutes A75 et A9 sont accessibles à moins de 9 km. Il y a une bibliothèque, un tennis, un commerce et une épicerie à proximité de la maison.
Elle est proposée à l'achat pour 390 000 €.
Prenez contact avec notre constructeur (MARTINEZ Mickaël : 06-16-87-37-15) pour tout renseignement sur la maison. Concrétisez vos projets immobiliers avec Maisons France Confort Clermont-l'Hérault.

Nous vous proposons un accompagnement de A à Z pour votre projet de vie :
- Conception personnalisée : Architecture moderne ou traditionnelle selon vos envies.
- Performance énergétique : Des maisons économes, conformes aux dernières normes environnementales (RE2020).
- Plus de 200 terrains en stock dont 50% hors lotissements.
- Garanties solides : Contrat de Construction de Maisons Individuelle (CCMI), prix et délais convenus, garantie de parfait achèvement, assurance dommage-ouvrage...

Mentions légales

Terrain proposé par un partenaire foncier selon disponibilités et autorisation de publicité au prix de 109 000 €. Hors droit d'enregistrement et frais de notaire. Terrain + Maison proposés au prix de 390 000 € (Hors branchements et raccordements, papiers peints, peintures, revêtement de sol dans les chambres. Tarif modifiable sans préavis). Etiquette énergie : A. Différents modèles disponibles pour ce terrain. Assurances et garanties du constructeur (RC professionnelle, décennale, dommage ouvrage, garantie de remboursement de l'acompte, livraison à prix et délai convenu) : https://www.maisons-france-confort.fr/mentions-legales/. HEXAOM Services est enregistré auprès de l'ORIAS en tant que Courtier en financement, Niveau 1, sous le numéro 14001345.

Contactez l'agence de Clermont-l'Hérault

04 67 96 00 74

    * Champs obligatoires

    Vos informations sont traitées par HEXAOM et transmises à un conseiller commercial qui vous contactera afin de répondre à votre demande. Les plans et images présentés sur notre site sont la propriété d’HEXAOM et ne peuvent pas être reproduits sans son accord. Pour retrouver notre politique de protection des données personnelles et exercer vos droits conformément à la « loi informatique et liberté » cliquez-ici.