Maison neuve à
Pissos (40410) Référence : TM2480544_2

Prix du projet : Maison avec Terrain

prix 255 800 €

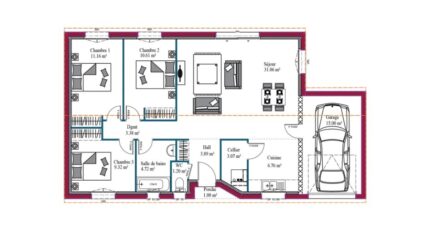
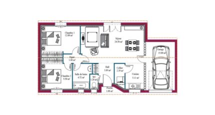
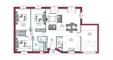
  • 3 pièces
  • 3 chambres
  • Surface maison 90 m2

Thierry MANO des maisons MCA à Biscarrosse, vous propose d'implanter le modèle Optima, sur ce terrain plat de 690m2, situé dans un petit lotissement sur la commune de Pissos.

Cette maison possède un grand salon-séjour tourné vers le jardin, une cuisine ouverte avec son cellier attenant, ce qui offre un espace jour de plus de 41m2. Le coté nuit est composé de 3 chambres avec placards, une salle de bains et wc séparés. Un garage communiquant de 15 m2 vient compléter ce bel ensemble.

Ce modèle saura vous plaire grâce à son agencement idéalement pensé pour votre confort de vie, et l'optimisation des espaces.

Rare opportunité sur le secteur !

Le prix affiché comprend le terrain, les frais de notaire, les frais annexes (raccordements, asl, bornage), et cette maison livrée prête à décorer.

Pour vous accompagner dans votre projet de construction personnalisé, contactez vite Thierry MANO à l'agence MCA de Biscarrosse, il vous guidera dans les démarches et la conception de votre maison.

Mentions légales

Idée de réalisation en modèle prêt à décorer sur l'un de nos terrains partenaires, sous réserve de disponibilités. Voir détails en agence.

Contactez l'agence de Biscarrosse

05 35 37 19 66

    * Champs obligatoires

    Vos informations sont traitées par HEXAOM et transmises à un conseiller commercial qui vous contactera afin de répondre à votre demande. Les plans et images présentés sur notre site sont la propriété d’HEXAOM et ne peuvent pas être reproduits sans son accord. Pour retrouver notre politique de protection des données personnelles et exercer vos droits conformément à la « loi informatique et liberté » cliquez-ici.