Maison neuve à
Ploeren (56880) Référence : GC2444930_3

Prix du projet : Maison avec Terrain

prix 379 000 €

  • 4 pièces
  • 3 chambres
  • Surface maison 95 m2

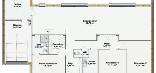
VENTE d'une maison T4 (95 m²) à Ploeren
MAISON 4 PIÈCES NEUVE - PROCHE DE VANNES
À 9 km de l'océan Atlantique et à deux pas de Vannes, notre agence Maisons de l'Avenir Vannes est heureuse de vous présenter cette maison de 4 pièces de 95 m² et de 324 m² de terrain à Ploeren (56880).
Cette maison compte 2 niveaux. Son intérieur est composé de trois chambres, d'une cuisine et de deux salles de bains. La maison est neuve.
L'École Primaire Publique Georges Brassens et l'École Primaire Privée Ker Anna sont implantées dans la commune. Niveau transports en commun, il y a deux gares (Vannes et Sainte-Anne) à moins de 10 minutes en voiture. On trouve une bibliothèque à proximité de la maison.
Elle est proposée à l'achat pour 379 000 €.
N'hésitez pas à prendre contact avec nous pour plus d'informations sur la maison, sur les démarches à suivre ou sur les modalités de vente. Maisons de l'Avenir Vannes est là pour vous accompagner dans tous vos projets immobiliers.

Mentions légales

Terrain proposé par un partenaire foncier selon disponibilités et autorisation de publicité au prix de 170 000 €. Hors droit d'enregistrement et frais de notaire. Terrain + Maison proposés au prix de 379 000 € (Hors branchements et raccordements, papiers peints, peintures, revêtement de sol dans les chambres. Tarif modifiable sans préavis). Etiquette énergie : A. Différents modèles disponibles pour ce terrain. Assurances et garanties du constructeur (RC professionnelle, décennale, dommage ouvrage, garantie de remboursement de l'acompte, livraison à prix et délai convenu) : https://www.maisonsdelavenir.com/mentions-legales/.

Contactez l'agence de Vannes

02 97 68 32 50

    * Champs obligatoires

    Vos informations sont traitées par HEXAOM et transmises à un conseiller commercial qui vous contactera afin de répondre à votre demande. Les plans et images présentés sur notre site sont la propriété d’HEXAOM et ne peuvent pas être reproduits sans son accord. Pour retrouver notre politique de protection des données personnelles et exercer vos droits conformément à la « loi informatique et liberté » cliquez-ici.