Maison neuve à
Plomodiern (29550) Référence : ML2469033_4

Prix du projet : Maison avec Terrain

prix 233 500 €

  • 4 pièces
  • 3 chambres
  • Surface maison 70 m2

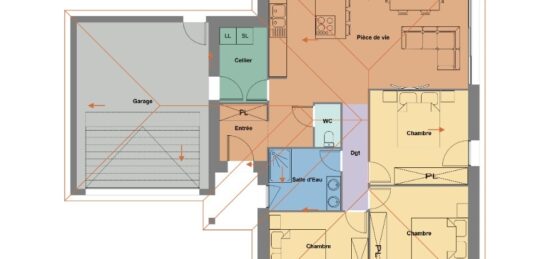
PLOMODIERN : MAISON BIO-CLIMATIQUE EN OSSATURE BOIS (70 m²) SUR GRAND TERRAIN
Maisons de l'Avenir Quimper vous propose une approche constructive durable et innovante à Plomodiern. Cette maison neuve de 4 pièces (70 m²), conçue intégralement de plain-pied en ossature bois, allie performance énergétique exceptionnelle et confort de vie naturel sur une parcelle généreuse au pied du Menez-Hom.

LES ATOUTS DE L'OSSATURE BOIS ET DU PLAIN-PIED
PERFORMANCE ET BIEN-ÊTRE : La construction en ossature bois offre une isolation thermique supérieure et une excellente régulation de l'air ambiant. Vous profitez d'une atmosphère saine et chaleureuse, tout en réduisant considérablement vos besoins en chauffage.

AGENCEMENT OPTIMISÉ (70 m²) : Ce modèle de plain-pied a été pensé pour supprimer toute perte de place. L'intérieur comprend 3 chambres accueillantes, une cuisine ouverte sur un salon lumineux et une salle de bains moderne. L'absence d'escaliers assure une circulation fluide et un confort durable à toutes les étapes de la vie.

UN TERRAIN D'EXCEPTION DE 865 m² : Édifiée sur une parcelle rare de plus de 800 m², la maison bénéficie d'une exposition Sud-Ouest optimale. Ce grand jardin vous offre une liberté totale d'aménagement : potager, terrasse spacieuse ou jardin paysager, tout en garantissant un cadre de vie calme et aéré.

PROXIMITÉ DES ÉCOLES ET SERVICES : Un emplacement stratégique pour faciliter votre quotidien. Les établissements scolaires (écoles Florence Arthaud et Notre-Dame du Menez Hom) ainsi que les infrastructures de loisirs (bibliothèque, tennis) sont accessibles rapidement.

MOBILITÉ ET CADRE DE VIE
Le projet jouit d'une excellente connexion aux infrastructures du Sud Finistère :

Axes routiers : Accès fluide aux nationales N165 et N164 pour rejoindre rapidement Quimper, Châteaulin ou Brest.

Transports : La gare de Châteaulin est facilement accessible pour vos besoins de mobilité régionale.

Environnement : Profitez d'un cadre de vie sain à Plomodiern, entre l

Mentions légales

Terrain proposé par un partenaire foncier selon disponibilités et autorisation de publicité au prix de 48 000 €. Hors droit d'enregistrement et frais de notaire. Terrain + Maison proposés au prix de 233 500 € (Hors branchements et raccordements, papiers peints, peintures, revêtement de sol dans les chambres. Tarif modifiable sans préavis). Etiquette énergie : A. Différents modèles disponibles pour ce terrain. Assurances et garanties du constructeur (RC professionnelle, décennale, dommage ouvrage, garantie de remboursement de l'acompte, livraison à prix et délai convenu) : https://www.maisonsdelavenir.com/mentions-legales/.

Contactez l'agence de Quimper

02 98 54 75 20

    * Champs obligatoires

    Vos informations sont traitées par HEXAOM et transmises à un conseiller commercial qui vous contactera afin de répondre à votre demande. Les plans et images présentés sur notre site sont la propriété d’HEXAOM et ne peuvent pas être reproduits sans son accord. Pour retrouver notre politique de protection des données personnelles et exercer vos droits conformément à la « loi informatique et liberté » cliquez-ici.