Maison neuve à
Polliat (01310) Référence : SG2635_1

Prix du projet : Maison avec Terrain

prix 183 900 €

  • 2 pièces
  • 2 chambres
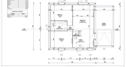
  • Surface maison 50 m2

Polliat : maison de 2 pièces (50 m²) à vendre
PROCHE DE BOURG-EN-BRESSE - MAISON 2 PIÈCES NEUVE
En vente : à 10 km de Bourg-en-Bresse, à Polliat (01310), nous vous présentons cette maison de 2 pièces de plain-pied de 50 m² et de 359 m² de terrain.
Son intérieur compte deux chambres, une cuisine et une salle de bains. Cette maison est neuve.
Des établissements scolaires maternelles et élémentaires sont implantés dans le quartier. Niveau transports, il y a la gare Polliat à moins de 10 minutes à pied. Les autoroutes A40 et A39 sont accessibles à moins de 10 km. On trouve un tennis, une bibliothèque, trois commerces et deux boucheries-charcuteries dans les environs.
Elle est proposée à l'achat pour 183 900 €.
Contactez notre agence (Sébastien GABRILLARGUES : 06-81-77-73-67) pour plus de renseignements sur ce bien, sur les démarches à suivre ou sur les modalités de vente. Faites de vos projets immobiliers une réalité avec Maisons France Confort Bourg-en-Bresse.

Annonce proposée par un Agent Commercial Partenaire.

Mentions légales

Terrain proposé par un partenaire foncier selon disponibilités et autorisation de publicité au prix de 53 900 €. Hors droit d'enregistrement et frais de notaire. Terrain + Maison proposés au prix de 183 900 € (Hors branchements et raccordements, papiers peints, peintures, revêtement de sol dans les chambres. Tarif modifiable sans préavis). Etiquette énergie : A. Différents modèles disponibles pour ce terrain. Assurances et garanties du constructeur (RC professionnelle, décennale, dommage ouvrage, garantie de remboursement de l'acompte, livraison à prix et délai convenu) : https://www.maisons-france-confort.fr/mentions-legales/. HEXAOM Services est enregistré auprès de l'ORIAS en tant que Courtier en financement, Niveau 1, sous le numéro 14001345.

Contactez l'agence de Bourg-en-Bresse

04 74 14 04 47

    * Champs obligatoires

    Vos informations sont traitées par HEXAOM et transmises à un conseiller commercial qui vous contactera afin de répondre à votre demande. Les plans et images présentés sur notre site sont la propriété d’HEXAOM et ne peuvent pas être reproduits sans son accord. Pour retrouver notre politique de protection des données personnelles et exercer vos droits conformément à la « loi informatique et liberté » cliquez-ici.