Maison neuve à 
  Pomérols
 (34810)  Référence :
 MM2323884_6 
Prix du projet : Maison avec Terrain
prix 380 000 €
- 6 pièces
- 4 chambres
- Surface maison 110 m2
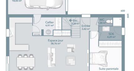
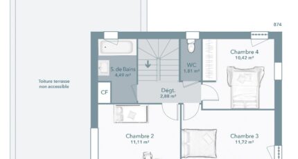
VENTE d'une maison de 6 pièces (110 m²) à Pomérols
PROCHE DE BÉZIERS - MAISON 6 PIÈCES NEUVE
En vente à 9 km de la mer Méditerranée et à deux pas de Béziers, nous vous proposons cette maison de 6 pièces de 110 m² à Pomérols (34810). Elle inclut quatre chambres, une cuisine et deux salles de bains.
Le terrain de la maison s'étend sur 250 m².
Cette maison comporte 2 niveaux. Elle est neuve.
Il y a l'École Primaire Marcel Lau à moins de 10 minutes à pied. Niveau transports, on trouve deux gares (Marseillan Plage et Agde) à moins de 10 minutes en voiture. Les autoroutes A9 et A75 sont accessibles à moins de 10 km. Il y a un tennis, deux boulangeries, un bureau de poste et deux boucheries-charcuteries à proximité du bien.
Il est proposé à l'achat pour 380 000 €.
Contactez Mickaël MARTINEZ (tél : 06-16-87-37-15) pour toute information sur cette maison. Maisons France Confort Clermont-l'Hérault vous accompagne dans toutes vos démarches et à toutes les étapes de l'achat.
Mentions légales
Terrain proposé par un partenaire foncier selon disponibilités et autorisation de publicité au prix de 110 000 €. Hors droit d'enregistrement et frais de notaire. Maison proposée, avec un contrat de construction de maison individuelle, dans le cadre de la loi du 19/12/1990, au prix de 270 000 € (Hors branchements et raccordements, papiers peints, peintures, revêtement de sol dans les chambres, qui sont chiffrés dans les travaux qui restent à charge du client. Tarif modifiable sans préavis). Étiquette énergie : A. Différents modèles disponibles pour ce terrain. Assurances et garanties du constructeur comprises (RC professionnelle, décennale, dommage ouvrage).Agence Maisons France Confort de Clermont-l'Hérault (34800)
- Téléphone :
- 04 67 96 00 74
- Adressse :
-  7 rue du Chardonnay
 34800 Clermont-l'Hérault, France
 
  
  
  
  
  
  
  
  
  
  
 