Maison neuve à
Pomponne
(77400) Référence :
FS2261003_1
Prix du projet : Maison avec Terrain
prix 395 000 €
- 5 pièces
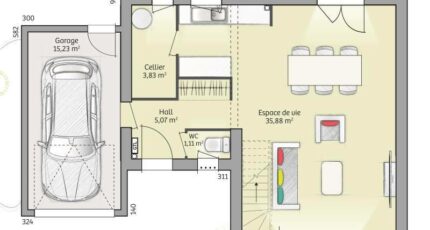
- 3 chambres
- Surface maison 90 m2
Pomponne : maison F5 (90 m²) en vente
PROCHE DE PARIS - MAISON 5 PIÈCES NEUVE
Au pied de la gare de Lagny-Thorigny (Paris à 25 min avec le Transilien P), venez découvrir cette maison de 5 pièces de 90 m² en vente à Pomponne (77400). Elle propose trois chambres, une cuisine et une salle de bains.
Le terrain de la propriété s'étend sur 485 m².
Cette maison possède 2 niveaux. Elle est neuve.
Il y a l'École Primaire les Cornouillers à moins de 10 minutes à pied et une structure d'accueil pour les enfants en bas âge. Niveau transports, on trouve le RER A, E et B ainsi que six gares à moins de 10 minutes en voiture. On trouve un tennis et trois commerces à quelques minutes.
Elle est à vendre pour la somme de 395 000 €.
Contactez notre agence (SOUMARMON Félix : 06-10-24-97-84) pour tout renseignement sur cette maison.
Annonce proposée par un Agent Commercial Partenaire.
Mentions légales
Terrain proposé par un partenaire foncier selon disponibilités et autorisation de publicité au prix de 225 000 €. Hors droit d'enregistrement et frais de notaire. Maison proposée, avec un contrat de construction de maison individuelle, dans le cadre de la loi du 19/12/1990, au prix de 170 000 € (Hors branchements et raccordements, papiers peints, peintures, revêtement de sol dans les chambres, qui sont chiffrés dans les travaux qui restent à charge du client. Tarif modifiable sans préavis). Étiquette énergie : A. Différents modèles disponibles pour ce terrain. Assurances et garanties du constructeur comprises (RC professionnelle, décennale, dommage ouvrage).Agence Maisons France Confort de Magny-le-Hongre (77700)
- Téléphone :
- 01 84 80 92 96
- Adressse :
- 11 rue de Courtalin
77700 Magny-le-Hongre, France
