Maison neuve à
Pons (17800) Référence : DB2403709_2

Prix du projet : Maison avec Terrain

prix 300 000 €

  • 4 pièces
  • 3 chambres
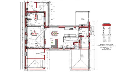
  • Surface maison 130 m2

Maison en vente
Alpha Constructions Jonzac vous présente cette maison de plain-pied de 130 m². Elle est composée de deux suites, d'une cuisine, un cellier et un bureau.
Le terrain de la propriété s'étend sur 1 200 m².
Situé sur la commune de Pons dans un quartier qui profite des commodités de la commune.
Elle est proposée à l'achat pour 300 000 €.
Contactez Dylan BOUYER (O6-78-O8-19-73) pour plus de renseignements sur la maison. Faites de vos projets immobiliers une réalité avec Alpha Constructions Jonzac.

Mentions légales

Terrain proposé par un partenaire foncier selon disponibilité dans le cadre d’un projet de construction avec Alpha Constructions. Les descriptions, photographies, surfaces et prix illustrant l’annonce sont fournies à titre indicatif et ne sont pas contractuels. Non soumis au DPE. Différents modèles disponibles.

Contactez l'agence de Jonzac

05 46 86 66 84

    * Champs obligatoires

    Vos informations sont traitées par HEXAOM et transmises à un conseiller commercial qui vous contactera afin de répondre à votre demande. Les plans et images présentés sur notre site sont la propriété d’HEXAOM et ne peuvent pas être reproduits sans son accord. Pour retrouver notre politique de protection des données personnelles et exercer vos droits conformément à la « loi informatique et liberté » cliquez-ici.