Maison neuve à
Pont-Évêque
(38780) Référence :
KS2441227_1
Prix du projet : Maison avec Terrain
prix 284 900 €
- 4 pièces
- 4 chambres
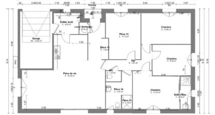
- Surface maison 104 m2
À vendre : Maison neuve 4 pièces (104 m²) à Pont-Évêque - À 30 min de Lyon
Maisons France Confort Saint-Priest vous propose cette belle maison neuve de plain-pied de 104 m², située à Pont-Évêque (38780), dans un environnement pratique et recherché.
Une maison familiale moderne et fonctionnelle
Cette maison se compose de :
4 chambres,
Une cuisine ouverte,
Deux salles de bains,
Le tout sur un terrain de 460 m², prêt à accueillir vos projets extérieurs (jardin, terrasse, etc.).
Un bien idéal pour une famille à la recherche d'un cadre de vie agréable à proximité immédiate de Lyon.
Un emplacement privilégié
À 26 km de Lyon, avec un accès rapide aux autoroutes A7, A46 et à la nationale N7
Gares de Vienne et Estressin à moins de 10 minutes en voiture
Écoles maternelles et élémentaires accessibles à pied
Proximité immédiate de toutes les commodités : commerces, supermarché, boulangeries, bibliothèque, tennis, bureau de poste...
Prix de vente : 284 900 €
Ne laissez pas passer cette opportunité rare de devenir propriétaire d'une maison neuve, bien située et à prix maîtrisé.
Pour en savoir plus ou démarrer votre projet, contactez Kevin SAOUTHI au 04 78 40 45 55.
Maisons France Confort Saint-Priest vous accompagne de la conception à la remise des clés.
Mentions légales
Terrain proposé par un partenaire foncier selon disponibilités et autorisation de publicité au prix de 124 900 €. Hors droit d'enregistrement et frais de notaire. Terrain + Maison proposés au prix de 284 900 € (Hors branchements et raccordements, papiers peints, peintures, revêtement de sol dans les chambres. Tarif modifiable sans préavis). Etiquette énergie : A. Différents modèles disponibles pour ce terrain. Assurances et garanties du constructeur (RC professionnelle, décennale, dommage ouvrage, garantie de remboursement de l'acompte, livraison à prix et délai convenu) : https://www.maisons-france-confort.fr/mentions-legales/. HEXAOM Services est enregistré auprès de l'ORIAS en tant que Courtier en financement, Niveau 1, sous le numéro 14001345.Agence Maisons France Confort de Saint-Priest (69800)
- Téléphone :
- 04 78 40 45 55
- Adressse :
- Cité de l'Environnement
69800 Saint-Priest, France
