Maison neuve à
Pont-l'Évêque
(14130) Référence :
AL2442833_11
Prix du projet : Maison avec Terrain
prix 241 759 €
- 6 pièces
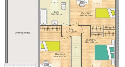
- 4 chambres
- Surface maison 89 m2
Pont-l'Évêque : maison F6 (89 m²) en vente
MAISON 6 PIÈCES NEUVE - PROCHE DU HAVRE
À vendre à 14 km de la Manche et à deux pas du Havre, nous sommes heureux de vous proposer cette maison de 6 pièces de 89 m² à Pont-l'Évêque (14130). Son intérieur se divise en quatre chambres, une cuisine et une salle de bains.
Le terrain du bien est de 521 m².
Cette maison comporte 2 niveaux. Elle est neuve.
Trois établissements scolaires sont implantés à moins de 10 minutes à pied, tout comme, comme le Collège Gustave Flaubert ou l'École Élémentaire Privée Bon Pasteur. Niveau transports, on trouve la gare Pont-l'Évêque à proximité. Les autoroutes A13, A132 et A29 sont accessibles à moins de 10 km. Il y a un tennis, une bibliothèque, des boulangeries, des commerces, un bureau de poste, une supérette et trois boucheries-charcuteries dans les environs. Ne manquez pas le marché Place Foch tous les lundis matin.
Son prix de vente est de 241 759 €.
Prenez contact avec Aurélien LEMONNIER (06-12-12-45-94) pour plus d'informations sur le bien. Maisons France Confort Deauville est là pour vous accompagner dans toutes vos démarches.
Mentions légales
Terrain proposé par un partenaire foncier selon disponibilités et autorisation de publicité au prix de 76 500 €. Hors droit d'enregistrement et frais de notaire. Terrain + Maison proposés au prix de 241 759 € (Hors branchements et raccordements, papiers peints, peintures, revêtement de sol dans les chambres. Tarif modifiable sans préavis). Etiquette énergie : A. Différents modèles disponibles pour ce terrain. Assurances et garanties du constructeur (RC professionnelle, décennale, dommage ouvrage, garantie de remboursement de l'acompte, livraison à prix et délai convenu) : https://www.maisons-france-confort.fr/mentions-legales/. HEXAOM Services est enregistré auprès de l'ORIAS en tant que Courtier en financement, Niveau 1, sous le numéro 14001345.Agence Maisons France Confort de Deauville (14800)
- Téléphone :
- 02 31 87 32 01
- Adressse :
- 45, Avenue de la République
14800 Deauville, France
