Maison neuve à
Pornic
(44210) Référence :
VC2324470_2
Prix du projet : Maison avec Terrain
prix 355 000 €
- 4 pièces
- 3 chambres
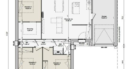
- Surface maison 84 m2
Pornic : maison F4 (84 m²) en vente
PROCHE DE SAINT-NAZAIRE - MAISON 4 PIÈCES NEUVE
À vendre au bord de l'océan Atlantique et à quelques kilomètres de Saint-Nazaire, Maisons Tradilignes Pornic vous propose cette maison de 4 pièces de plain-pied de 84 m² à Pornic (44210). Son intérieur est composé de trois chambres, d'une cuisine et d'une salle de bains.
Le terrain du bien est de 750 m².
La maison est neuve.
Il y a cinq établissements scolaires à moins de 10 minutes. Niveau transports, on trouve la gare Pornic dans les environs. Il y a un port de plaisance, des commerces, des boulangeries, un supermarché, une supérette et trois poissonneries à quelques minutes du logement.
Elle est à vendre pour la somme de 355 000 €.
Contactez Vincent COUCHAUX (tél : 06-74-86-07-98) pour toute information sur cette maison. Maisons Tradilignes Pornic vous accompagne à toutes les étapes de l'achat et dans tous vos projets immobiliers.
Mentions légales
Terrain proposé par un partenaire foncier selon disponibilités et autorisation de publicité au prix de 187 900 €. Hors droit d'enregistrement et frais de notaire. Maison proposée, avec un contrat de construction de maison individuelle, dans le cadre de la loi du 19/12/1990, au prix de 167 100 € (Hors branchements et raccordements, papiers peints, peintures, revêtement de sol dans les chambres, qui sont chiffrés dans les travaux qui restent à charge du client. Tarif modifiable sans préavis). Étiquette énergie : A. Différents modèles disponibles pour ce terrain. Assurances et garanties du constructeur comprises (RC professionnelle, décennale, dommage ouvrage).Agence Maisons Tradilignes de Pornic (44210)
- Téléphone :
- 02 40 82 59 91
- Adressse :
- 46 rue du Général de Gaulle
44210 Pornic, France
