Maison neuve à
Port-des-Barques
(17730) Référence :
CR2466542_1
Prix du projet : Maison avec Terrain
prix 355 720 €
- 5 pièces
- 4 chambres
- Surface maison 130 m2
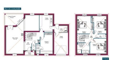
Cette maison à étage au caractère méditerranéen séduit par ses volumes et ses agencements intérieurs.
L'un des points fort de cette construction est le grand salon-séjour qui se prolonge sur une agréable terrasse couverte.
Une grande cuisine de plus de 11m2 permet de profiter des repas en famille. Elle communique avec le cellier et le garage pour une vie plus simple au quotidien (gestion des courses, stockage...).
Le hall d'entrée central réunit toutes les pièces à vivre, ainsi qu'une première chambre avec sa salle d'eau qui deviendra la suite parentale. L'escalier mène à un palier qui dessert le reste de la partie nuit, composée de 3 belles chambres et d'une grande salle de bain avec double vasque, douche et baignoire.
Fonctionnelle, chaque chambre de cette maison de 130 m2 dispose de placards.
Vous préférez une cuisine ouverte ? Vous souhaitez revoir l'agencement d'une pièce ? C'est possible car ce modèle est 100% personnalisable !
Prix indicatif hors peintures, hors options et hors frais annexes.
Terrain sélectionné et vu pour vous sous réserve de disponibilité et au prix indiqué par notre partenaire foncier.
Visuels non contractuels.
Contact et renseignements: Cédric RÊTEUX O7 67 07 20 68
Projet de construction signé les Maisons MCA
Maisons de la Côte Atlantique Saintes est là pour vous accompagner dans tous vos projets immobiliers.
Mentions légales
Idée de réalisation en modèle prêt à décorer sur l'un de nos terrains partenaires, sous réserve de disponibilités. Voir détails en agence.Agence Maisons de la Côte Atlantique de Rochefort (17300)
- Téléphone :
- 05 46 88 71 67
- Adressse :
- 95 rue des pêcheurs d'Islande
17300 Rochefort, France
