Maison neuve à
Pineuilh
(33220) Référence :
BD2385080_1
Prix du projet : Maison avec Terrain
prix 149 000 €
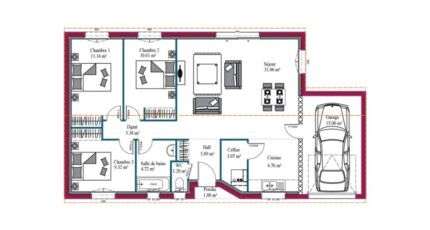
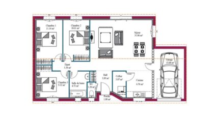
- 4 pièces
- 2 chambres
- Surface maison 65 m2
Maison de 3 pièces (65 m²) à vendre à Port-Sainte-Foy-et-Ponchapt
PROCHE DE BERGERAC - MAISON 4 PIÈCES NEUVE
En vente à quelques kilomètres de Bergerac, Maisons de la Côte Atlantique Bergerac vous propose cette maison de 4 pièces de plain-pied de 65 m² et de 1 000 m² de terrain à Port-Sainte-Foy-et-Ponchapt (33220).
Elle propose deux chambres, une cuisine et une salle de bains. La maison est neuve.
Cette maison sera aux normes RE2020 en contrat CCMI, le contrat qui vous apporte la sécurité d'une maison faite dans les règles de l'art avec une garantie de livraison. Avec les maisons MCA vous bénéficierez aussi d'un espace personnalisé pour le suivi et échanges avec tous les intermédiaires de votre chantier.
Son prix de vente est de 149 000 €, terrain, maison en PAD, hors frais de viabilisation et adaptation.
Contactez notre agence (DURAND Benoit : O6-65-85-53-20) pour plus de renseignements sur cette maison. Maisons de la Côte Atlantique Bergerac vous accompagne dans toutes vos démarches et dans tous vos projets immobiliers.
Mentions légales
Idée de réalisation en modèle prêt à décorer sur l'un de nos terrains partenaires, sous réserve de disponibilités. Voir détails en agence.Agence Maisons de la Côte Atlantique de Bergerac (24100)
- Téléphone :
- 05 53 22 30 10
- Adressse :
- La Cavaille Nord
24100 Bergerac, France
