Maison neuve à
Pineuilh
(33220) Référence :
BD2385080_3
Prix du projet : Maison avec Terrain
prix 320 000 €
- 5 pièces
- 4 chambres
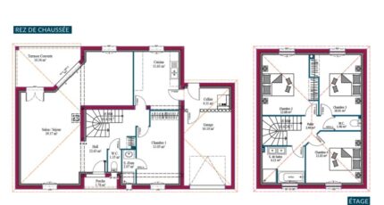
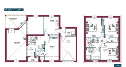
- Surface maison 130 m2
PORT STE FOY, avec les Maisons MCA faîtes bâtir votre future maison contemporaine, alliant confort, performance énergétique et sérénité grâce au CCMI !
Nous vous proposons un projet clé en main pour une maison moderne en R+1, idéale pour une famille ou un couple recherchant espace et luminosité.
📌 Caractéristiques principales :
RDC : Cuisine ouverte sur séjour lumineux, 2 chambres, salle de bain, WC séparé
Étage : Suite parentale avec dressing, bureau spacieux, balcon pour profiter de l'extérieur
Extérieur : Terrain paysagé, possibilité d'aménagement sur mesure
✅ Les avantages du CCMI :
Sécurité juridique et financière : prix et délais garantis, protection contre les aléas de construction
Accompagnement personnalisé : un interlocuteur unique pour un projet sans stress
Garanties décennales : tranquillité d'esprit pour les 10 prochaines années
🌱 Conforme à la RE2020 :
Maison basse consommation : isolation renforcée, chauffage performant, énergie renouvelable intégrée
Confort optimal : température stable, air sain, factures d'énergie réduites
Valeur durable : un bien respectueux de l'environnement et valorisant pour la revente
📍 Situation idéale : Proche des commodités (écoles, commerces, transports), dans un quartier calme et recherché.
📞 Contactez notre agent local Benoît DURAND au O6 65 85 53 20 dès maintenant pour une étude personnalisée et visitez le terrain ! Possibilité d'adaptation des plans selon vos besoins.
Mentions légales
Idée de réalisation en modèle prêt à décorer sur l'un de nos terrains partenaires, sous réserve de disponibilités. Voir détails en agence.Agence Maisons de la Côte Atlantique de Bergerac (24100)
- Téléphone :
- 05 53 22 30 10
- Adressse :
- La Cavaille Nord
24100 Bergerac, France
