Maison neuve à
Portets (33640) Référence : PA500PORTETS-3_1

Prix du projet : Maison avec Terrain

prix 228 930 €

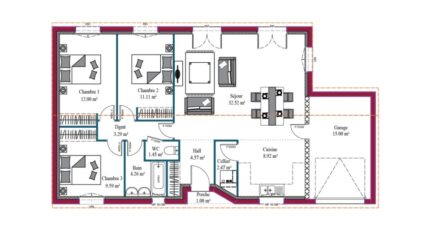
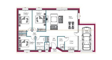
  • 4 pièces
  • 2 chambres
  • Surface maison 65 m2

VENTE d'une maison F4 (65 m²) à Portets
EMPLACEMENT PRIVILÉGIÉ - MAISON 4 PIÈCES NEUVE
À 26 km de la côte atlantique et à quelques kilomètres de Bordeaux, votre agence Maisons de la Côte Atlantique Portets est heureuse de vous proposer en vente, bénéficiant d'un emplacement privilégié dans Portets (33640), cette maison de 4 pièces de plain-pied de 65 m².
Conçue de plain-pied, elle compte deux chambres, une cuisine et une salle de bains. Cette maison est neuve.
Le terrain de la propriété s'étend sur 500 m².
La maison se trouve dans un secteur recherché. Des écoles maternelles et élémentaires y sont implantées. Niveau transports en commun, il y a la gare Portets à moins de 10 minutes à pied. On trouve un accès à l'autoroute A62 à 6 km. On trouve un tennis à quelques minutes du logement.
Son prix de vente est de 228 930 €.
Prenez contact avec notre agence pour toute question sur le bien, sur les démarches à suivre ou sur les modalités de vente. Maisons de la Côte Atlantique Portets vous accompagne dans tous vos projets immobiliers et à toutes les étapes de l'achat.

Mentions légales

Idée de réalisation en modèle prêt à décorer sur l'un de nos terrains partenaires, sous réserve de disponibilités. Voir détails en agence.

Contactez l'agence de Portets

05 56 32 87 56

    * Champs obligatoires

    Vos informations sont traitées par HEXAOM et transmises à un conseiller commercial qui vous contactera afin de répondre à votre demande. Les plans et images présentés sur notre site sont la propriété d’HEXAOM et ne peuvent pas être reproduits sans son accord. Pour retrouver notre politique de protection des données personnelles et exercer vos droits conformément à la « loi informatique et liberté » cliquez-ici.