Maison neuve à
Portiragnes (34420) Référence : LR2407238_1

Prix du projet : Maison avec Terrain

prix 252 000 €

  • 4 pièces
  • 3 chambres
  • Surface maison 83 m2

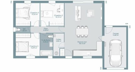
VENTE d'une maison de 4 pièces (83 m²) à Portiragnes

PROCHE DE BÉZIERS - MAISON 4 PIÈCES NEUVE

A vendre à 10 minutes des plages, et 15 minutes de Béziers, nous sommes ravis de vous présenter cette maison de 4 pièces de plain-pied de 83 m² en vente à Portiragnes (34420). Conçue de plain-pied, elle est composée de trois chambres, d'une cuisine et d'une salle de bains.
Le terrain du bien s'étend sur 302 m².
Cette maison est neuve.
L'École Primaire Jean Jaurès se trouve à moins de 10 minutes à pied. Niveau transports en commun, il y a les gares Vias et Béziers à moins de 10 minutes en voiture. Les autoroutes A75 et A9 sont accessibles à moins de 5 km. On trouve trois commerces, deux boulangeries, une boucherie-charcuterie, un bureau de poste et une épicerie à proximité de la maison.
Elle est proposée à l'achat pour 252 000 €.
Contactez Lionel ROMERA (tél : 06-30-39-77-79) pour toute information sur la maison, sur les démarches à suivre ou sur les modalités de vente. Maisons France Confort Montpellier est là pour vous accompagner à toutes les étapes de l'achat.

Annonce proposée par un Agent Commercial Partenaire.

Mentions légales

Terrain proposé par un partenaire foncier selon disponibilités et autorisation de publicité au prix de 112 900 €. Hors droit d'enregistrement et frais de notaire. Terrain + Maison proposés au prix de 252 000 € (Hors branchements et raccordements, papiers peints, peintures, revêtement de sol dans les chambres. Tarif modifiable sans préavis). Etiquette énergie : A. Différents modèles disponibles pour ce terrain. Assurances et garanties du constructeur (RC professionnelle, décennale, dommage ouvrage, garantie de remboursement de l'acompte, livraison à prix et délai convenu) : https://www.maisons-france-confort.fr/mentions-legales/. HEXAOM Services est enregistré auprès de l'ORIAS en tant que Courtier en financement, Niveau 1, sous le numéro 14001345.

Contactez l'agence de Montpellier

04 67 64 85 11

    * Champs obligatoires

    Vos informations sont traitées par HEXAOM et transmises à un conseiller commercial qui vous contactera afin de répondre à votre demande. Les plans et images présentés sur notre site sont la propriété d’HEXAOM et ne peuvent pas être reproduits sans son accord. Pour retrouver notre politique de protection des données personnelles et exercer vos droits conformément à la « loi informatique et liberté » cliquez-ici.