Maison neuve à
Poussignac
(47700) Référence :
AF2458270_3
Prix du projet : Maison avec Terrain
prix 238 000 €
- 3 pièces
- 3 chambres
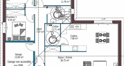
- Surface maison 95 m2
VENTE : maison T3 (95 m²) à Poussignac
MAISON 3 PIÈCES NEUVE
Venez découvrir cette maison de 3 pièces de plain-pied de 95 m² à vendre à Poussignac (47700).
Conçue de plain-pied, elle se divise en trois chambres, une cuisine et une salle de bains. Cette maison est neuve.
Le terrain du bien est de 1 945 m².
Il y a un accès à l'autoroute A62 à 11 km. Il y a un tennis à proximité.
Elle est à vendre pour la somme de 238 000 €.
Mentions légales
Idée de réalisation en modèle prêt à décorer sur l'un de nos terrains partenaires, sous réserve de disponibilités. Voir détails en agence.Agence Maisons de la Côte Atlantique de Marmande (47200)
- Téléphone :
- 05 53 84 47 83
- Adressse :
- Route de Bordeaux
47200 Marmande, France
