Maison neuve à
Pouzolles
(34480) Référence :
AB2416354_4
Prix du projet : Maison avec Terrain
prix 217 000 €
- 3 pièces
- 2 chambres
- Surface maison 70 m2
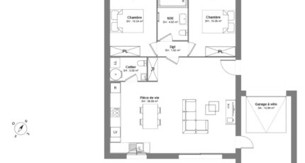
PROJET DE CONSTRUCTION - Pouzolles : maison de 3 pièces (70 m²)
EMPLACEMENT PRIVILÉGIÉ - MAISON 3 PIÈCES
À vendre : à 24 km de la mer Méditerranée et à 14 km de Béziers, bénéficiant d'un emplacement privilégié dans Pouzolles (34480), Maisons France Confort Béziers vous propose cette maison de 3 pièces de plain-pied de 70 m².
Elle dispose de deux chambres, d'une cuisine, d'un cellier, d'une salle de bains et d'un garage.
(Carrelage inclus dans toutes les pièces / Raccordements inclus).
Le terrain de la propriété s'étend sur 457 m².
La maison se trouve dans un secteur recherché. Une école primaire y est implantée. Niveau transports, il y a la gare Magalas à moins de 10 minutes en voiture. L'autoroute A75 est accessible à 10 km. On trouve une bibliothèque, un tennis, une boulangerie et une épicerie à quelques minutes.
Elle est à vendre pour la somme de 217 000 €.
Pour plus d'information contacter (Anthony BALLESTER : 06-27-21-51-55) Maisons France Confort Béziers pour échanger sur votre projet et réaliser une étude gratuite. (Plan personnalisable). Tous nos ouvrages sont réalisés sur-mesure en fonction de vos attentes et de nos échanges avec vous ainsi que dans le respect de la règlementation RE 2020. Ce projet comporte les garanties suivantes: Contrat de construction CCMI. Dommage/Ouvrage. RC Garantie décennale. Parfaite achèvement. Etude de sol G2. Prix et délais convenu. Garantie de livraison. Garantie financière Pour votre tranquillité nous nous occupons de toutes les formalités administratives.
Mentions légales
Terrain proposé par un partenaire foncier selon disponibilités et autorisation de publicité au prix de 90 000 €. Hors droit d'enregistrement et frais de notaire. Terrain + Maison proposés au prix de 217 000 € (Hors branchements et raccordements, papiers peints, peintures, revêtement de sol dans les chambres. Tarif modifiable sans préavis). Etiquette énergie : A. Différents modèles disponibles pour ce terrain. Assurances et garanties du constructeur (RC professionnelle, décennale, dommage ouvrage, garantie de remboursement de l'acompte, livraison à prix et délai convenu) : https://www.maisons-france-confort.fr/mentions-legales/. HEXAOM Services est enregistré auprès de l'ORIAS en tant que Courtier en financement, Niveau 1, sous le numéro 14001345.Agence Maisons France Confort de Béziers (34500)
- Téléphone :
- 04 67 00 85 60
- Adressse :
- 66, avenue Pierre Verdier
34500 Béziers, France