Maison neuve à
Pouzols
(34230) Référence :
LR2248897_1
Prix du projet : Maison avec Terrain
prix 424 000 €
- 6 pièces
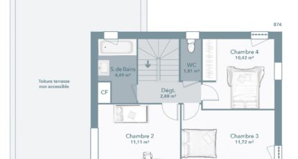
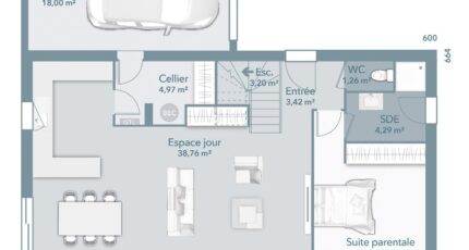
- 4 chambres
- Surface maison 110 m2
Pouzols : maison de 6 pièces (110 m²) en vente
IDÉALEMENT SITUÉE - MAISON 6 PIÈCES NEUVE
En vente : à 6 minutes de Gignac, 15 minutes de Clermont l'Hérault, 25 minutes de Montpellier et 35 minutes de Béziers., Maisons France Confort Montpellier vous présente, idéalement située dans Pouzols (34230), cette maison de 6 pièces de 110 m².
Cette maison compte 2 niveaux. Son intérieur inclut quatre chambres, une cuisine et deux salles de bains. Cette maison est neuve.
Le terrain du bien est de 514 m².
La propriété est située dans un secteur recherché. On y trouve une école primaire. Les autoroutes A75 et A750 sont accessibles à moins de 4 km. On trouve une bibliothèque, un tennis, une boulangerie et une épicerie à quelques minutes du logement.
Elle est à vendre pour la somme de 424 000 €.
Prenez contact avec Lionel ROMERA (tél : 06-30-39-77-79) pour obtenir de plus amples renseignements sur la maison, sur les démarches à suivre et sur les modalités de vente.
Annonce proposée par un Agent Commercial Partenaire.
Mentions légales
Terrain proposé par un partenaire foncier selon disponibilités et autorisation de publicité au prix de 159 000 €. Hors droit d'enregistrement et frais de notaire. Maison proposée, avec un contrat de construction de maison individuelle, dans le cadre de la loi du 19/12/1990, au prix de 265 000 € (Hors branchements et raccordements, papiers peints, peintures, revêtement de sol dans les chambres, qui sont chiffrés dans les travaux qui restent à charge du client. Tarif modifiable sans préavis). Étiquette énergie : A. Différents modèles disponibles pour ce terrain. Assurances et garanties du constructeur comprises (RC professionnelle, décennale, dommage ouvrage).Agence Maisons France Confort de Montpellier (34000)
- Téléphone :
- 04 67 64 85 11
- Adressse :
- 48, impasse Louis Ferdinand Herold
34000 Montpellier, France
