Maison neuve à
Provins (77160) Référence : AD2476231_2

Prix du projet : Maison avec Terrain

prix 257 000 €

  • 6 pièces
  • 4 chambres
  • Surface maison 89 m2

Provins : maison de 6 pièces (89 m²) à vendre
EMPLACEMENT PRIVILÉGIÉ - MAISON 6 PIÈCES NEUVE
Au pied de la gare (Paris à 1 h avec le Transilien P), découvrez cette maison de 6 pièces de 89 m² et de 916 m² de terrain bénéficiant d'un emplacement d'exception dans Provins (77160).
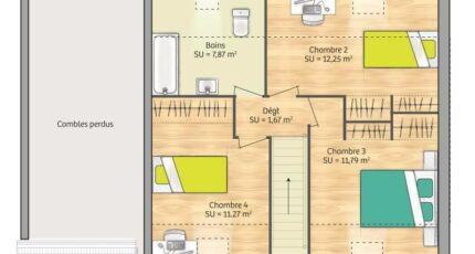
Cette maison compte 2 niveaux. Elle compte quatre chambres, une cuisine et une salle de bains. Cette maison est neuve.
Cette propriété se situe dans un quartier attractif. Des écoles (de la maternelle au lycée) sont implantées à moins de 10 minutes à pied, tout comme deux crèches. Niveau transports, il y a la gare Provins juste à côté. On trouve un tennis, un bassin de natation, une bibliothèque, des commerces, un bureau de poste, une supérette, des épiceries et des boucheries-charcuteries dans les environs. Enfin, le marché Centre-Ville anime les environs tous les samedis matin.
Son prix de vente est de 257 000 €.
Prenez contact avec notre agence (DELOHEN Anne : 06-30-93-26-67) pour obtenir de plus amples informations sur la maison ou sur les modalités de vente.

Annonce proposée par un Agent Commercial Partenaire.

Mentions légales

Terrain proposé par un partenaire foncier selon disponibilités et autorisation de publicité au prix de 89 000 €. Hors droit d'enregistrement et frais de notaire. Terrain + Maison proposés au prix de 257 000 € (Hors branchements et raccordements, papiers peints, peintures, revêtement de sol dans les chambres. Tarif modifiable sans préavis). Etiquette énergie : A. Différents modèles disponibles pour ce terrain. Assurances et garanties du constructeur (RC professionnelle, décennale, dommage ouvrage, garantie de remboursement de l'acompte, livraison à prix et délai convenu) : https://www.maisons-france-confort.fr/mentions-legales/. HEXAOM Services est enregistré auprès de l'ORIAS en tant que Courtier en financement, Niveau 1, sous le numéro 14001345.

Contactez l'agence de Nemours

01 64 28 58 32

    * Champs obligatoires

    Vos informations sont traitées par HEXAOM et transmises à un conseiller commercial qui vous contactera afin de répondre à votre demande. Les plans et images présentés sur notre site sont la propriété d’HEXAOM et ne peuvent pas être reproduits sans son accord. Pour retrouver notre politique de protection des données personnelles et exercer vos droits conformément à la « loi informatique et liberté » cliquez-ici.