Maison neuve à
Pruillé (49220) Référence : RS2496610_4

Prix du projet : Maison avec Terrain

prix 271 400 €

  • 5 pièces
  • 3 chambres
  • Surface maison 85 m2

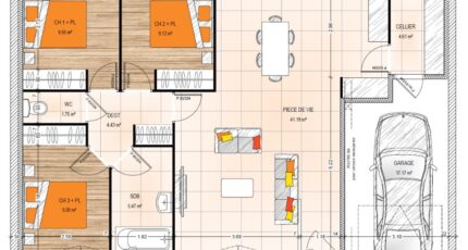
MAISON NEUVE À PRUILLÉ AVEC 85 M² HABITABLE ET 5 PIÈCES

PRÉSENTATION DU BIEN
Située à Pruillé, cette maison à construire offre une surface habitable de 85 m² sur un terrain de 516 m².

Cette maison comprend trois chambres, une cuisine et une salle de bains. La surface totale habitable de 85 m² vous permet de réaliser un projet adapté à vos besoins.

Le bien est construit sur un seul niveau, ce qui facilite les déplacements au sein de la maison.

Le terrain de 516 m² offre un espace extérieur appréciable pour vos projets d'aménagement.

ENVIRONNEMENT

Située dans une zone d'habitation de Pruillé, cette maison bénéficie de la proximité de la ville d'Angers, située à 12 km. Plusieurs arrêts de bus sont accessibles à moins de 10 minutes à pied, desservis par la ligne 203, facilitant vos déplacements quotidiens. Vous trouverez également plusieurs écoles primaires dans les environs, telles que l'école primaire privée Saint Venant et les écoles publiques Le Petit Prince, du Brionneau, St Exupéry et Saint François. Des commerces sont également présents autour du bien, permettant un accès pratique aux services nécessaires. À proximité, vous pouvez profiter d'activités sportives comme le tennis ainsi que d'un restaurant situé à moins de 5 minutes à pied. Enfin, l'autoroute A11 se trouve à 10 km, facilitant les trajets en voiture.

NOUS CONTACTER
Ce bien est en vente au prix de 271 400 euros, honoraires inclus.

Construisez votre maison dans ce secteur de Pruillé et saisissez cette opportunité avec Maisons Bernard Jambert Angers.

Pour plus d'informations, contactez Roman SALAS au 02-41-77-17-17. L'équipe de Maisons Bernard Jambert se tient à votre disposition pour vous accompagner dans votre projet de construction.

Mentions légales

Terrain proposé par un partenaire foncier selon disponibilités et autorisation de publicité au prix de 87 720 €. Hors droit d'enregistrement et frais de notaire. Terrain + Maison proposés au prix de 271 400 € (Hors branchements et raccordements, papiers peints, peintures, revêtement de sol dans les chambres. Tarif modifiable sans préavis). Etiquette énergie : A. Différents modèles disponibles pour ce terrain. Assurances et garanties du constructeur (RC professionnelle, décennale, dommage ouvrage, garantie de remboursement de l'acompte, livraison à prix et délai convenu) : https://www.maisons-bernard-jambert.com/informations-legales/.

Contactez l'agence de Angers

02 41 77 17 17

    * Champs obligatoires

    Vos informations sont traitées par HEXAOM et transmises à un conseiller commercial qui vous contactera afin de répondre à votre demande. Les plans et images présentés sur notre site sont la propriété d’HEXAOM et ne peuvent pas être reproduits sans son accord. Pour retrouver notre politique de protection des données personnelles et exercer vos droits conformément à la « loi informatique et liberté » cliquez-ici.