Maison neuve à
Puget-sur-Argens
(83480) Référence :
NC2453104_1
Prix du projet : Maison avec Terrain
prix 530 000 €
- 4 pièces
- 4 chambres
- Surface maison 110 m2
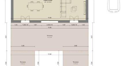
Maison de type bastide d'une superficie de 119m2. Elle est composée de 4 chambres dont une suite parentale.
Au RDC vous trouverez une grande pièce à vivre, un toilette, une buanderie.
A l'étage, 4 chambres dont une suite master. Une salle de bain avec baignoire, meuble vasque et toilette.
Tous nos plans sont fait sur mesure, nous pouvons échanger ensemble sur vos besoins, votre budget, vos envies.
Cette maison n'est qu'une proposition.
Avec Maison de Manon;
✔️ Projet de maison sur mesure
✔️ Gestion administrative
✔️ Construction clé en main
📞 Contact : Noémie COUTIAUX
📱 O6 89 46 85 53
N'hésitez pas à me contacter pour plus d'informations ou une étude personnalisée 😊
Mentions légales
Terrain proposé par un partenaire foncier selon disponibilités et autorisation de publicité au prix de 280 000 €. Hors droit d'enregistrement et frais de notaire. Terrain + Maison proposés au prix de 530 000 € (Hors branchements et raccordements, papiers peints, peintures, revêtement de sol dans les chambres. Tarif modifiable sans préavis). Etiquette énergie : A. Différents modèles disponibles pour ce terrain. Assurances et garanties du constructeur (RC professionnelle, décennale, dommage ouvrage, garantie de remboursement de l'acompte, livraison à prix et délai convenu) : https://www.maisons-de-manon.fr/informations-legales/. HEXAOM Services est enregistré auprès de l'ORIAS en tant que Courtier en financement, Niveau 1, sous le numéro 14001345.Agence Maisons de Manon de Callian (83440)
- Téléphone :
- 04 94 76 22 22
- Adressse :
- D 562
83440 Callian, France
