Maison neuve à
Quarante
(34310) Référence :
AB2401709_3
Prix du projet : Maison avec Terrain
prix 208 000 €
- 3 pièces
- 2 chambres
- Surface maison 70 m2
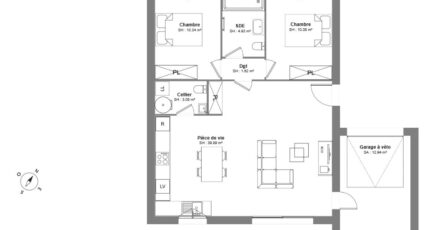
PROJET DE CONSTRUCTION - Maison F3 (70 m²) à Quarante
MAISON 3 PIÈCES - PROCHE DE BÉZIERS
En vente : située à 30 km de la côte méditerranéenne et à deux pas de Béziers, à Quarante (34310), ayez le coup de coeur pour cette maison de 3 pièces de plain-pied de 70 m².
Elle est composée de deux chambres, d'une cuisine, d'un cellier, d'une salle de bains et d'un garage.
(Carrelage inclus dans toutes les pièces / Raccordements inclus).
Le terrain du bien s'étend sur 558 m².
Il y a le Collège Louis Cahuzac, l'École Élémentaire Jules Ferry et l'École Maternelle de l'Horte à moins de 10 minutes à pied. L'autoroute A9 est accessible à 20 km. On trouve un tennis, deux boulangeries, un bureau de poste, une épicerie et trois boucheries-charcuteries dans les environs.
Son prix de vente est de 208 000 €.
Pour plus d'information contacter (Anthony BALLESTER : 06.27.21.51.55) Maisons France Confort Béziers pour échanger sur votre projet et réaliser une étude gratuite. (Plan personnalisable). Tous nos ouvrages sont réalisés sur-mesure en fonction de vos attentes et de nos échanges avec vous ainsi que dans le respect de la règlementation RE 2020. Ce projet comporte les garanties suivantes: Contrat de construction CCMI. Dommage/Ouvrage. RC Garantie décennale. Parfaite achèvement. Etude de sol G2. Prix et délais convenu. Garantie de livraison. Garantie financière Pour votre tranquillité nous nous occupons de toutes les formalités administratives.
Mentions légales
Terrain proposé par un partenaire foncier selon disponibilités et autorisation de publicité au prix de 79 900 €. Hors droit d'enregistrement et frais de notaire. Terrain + Maison proposés au prix de 208 000 € (Hors branchements et raccordements, papiers peints, peintures, revêtement de sol dans les chambres. Tarif modifiable sans préavis). Etiquette énergie : A. Différents modèles disponibles pour ce terrain. Assurances et garanties du constructeur (RC professionnelle, décennale, dommage ouvrage, garantie de remboursement de l'acompte, livraison à prix et délai convenu) : https://www.maisons-france-confort.fr/mentions-legales/. HEXAOM Services est enregistré auprès de l'ORIAS en tant que Courtier en financement, Niveau 1, sous le numéro 14001345.Agence Maisons France Confort de Béziers (34500)
- Téléphone :
- 04 67 00 85 60
- Adressse :
- 66, avenue Pierre Verdier
34500 Béziers, France
