Maison neuve à
Quimper (29000) Référence : ML2487351_2

Prix du projet : Maison avec Terrain

prix 309 700 €

  • 5 pièces
  • 4 chambres
  • Surface maison 95 m2

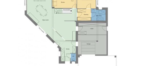
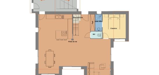
Maison neuve d'exception de 148 m² à Quimper : Volumes et sérénité sur un vaste terrain
Un cadre de vie privilégié au coeur de la Cornouaille
Laissez-vous séduire par cette superbe propriété neuve située à Quimper, au sein d'un secteur recherché pour son calme et sa proximité avec toutes les commodités. Cette maison offre une opportunité rare de conjuguer vie citadine et espace, le tout à proximité immédiate du littoral. Profitez d'un environnement de qualité où chaque membre de la famille trouvera son épanouissement, avec un accès facilité aux pôles d'activités et aux transports.

Les atouts de cette demeure de prestige
Espace et confort : Une architecture moderne sur deux niveaux offrant 148 m² habitables. Elle dispose de quatre chambres spacieuses, d'une cuisine lumineuse et de deux salles de bains, garantissant une parfaite harmonie familiale.

Terrain d'exception : Un jardin généreux de 940 m², véritable écrin de verdure en ville, idéal pour vos projets d'aménagements extérieurs et vos moments de détente.

Vie locale et services : Bénéficiez d'un quotidien facilité par la proximité des commerces de bouche, des supérettes et du traditionnel marché hebdomadaire pour des produits frais et locaux.

Éducation et culture : Un emplacement stratégique avec une vie scolaire complète (de la crèche au lycée) et des infrastructures culturelles comme la bibliothèque, accessibles en quelques minutes.

Votre projet 100 % sur mesure avec Maisons de l'Avenir Quimper
Parce que votre projet est unique, nous concevons bien plus qu'une simple construction. Chez Maisons de l'Avenir Quimper, nous plaçons la personnalisation au centre de notre démarche :

Conception sur-mesure : Nous adaptons les plans, les volumes et l'agencement intérieur pour que cette maison soit le reflet exact de vos envies et de votre mode de vie.

Expertise technique : Profitez d'une construction haute performance répondant aux dernières normes énergétiques, tout en respectant scrupuleusement votre budget.

Ac

Mentions légales

Terrain proposé par un partenaire foncier selon disponibilités et autorisation de publicité au prix de 89 500 €. Hors droit d'enregistrement et frais de notaire. Terrain + Maison proposés au prix de 309 700 € (Hors branchements et raccordements, papiers peints, peintures, revêtement de sol dans les chambres. Tarif modifiable sans préavis). Etiquette énergie : A. Différents modèles disponibles pour ce terrain. Assurances et garanties du constructeur (RC professionnelle, décennale, dommage ouvrage, garantie de remboursement de l'acompte, livraison à prix et délai convenu) : https://www.maisonsdelavenir.com/mentions-legales/.

Contactez l'agence de Quimper

02 98 54 75 20

    * Champs obligatoires

    Vos informations sont traitées par HEXAOM et transmises à un conseiller commercial qui vous contactera afin de répondre à votre demande. Les plans et images présentés sur notre site sont la propriété d’HEXAOM et ne peuvent pas être reproduits sans son accord. Pour retrouver notre politique de protection des données personnelles et exercer vos droits conformément à la « loi informatique et liberté » cliquez-ici.