Maison neuve à
Quimperlé
(29300) Référence :
ML2309149_4
Prix du projet : Maison avec Terrain
prix 248 700 €
- 4 pièces
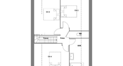
- 3 chambres
- Surface maison 89 m2
VENTE : maison F4 (89 m²) à Quimperlé
MAISON 4 PIÈCES NEUVE - PROCHE DE LORIENT
En vente : à 13 km de la côte atlantique et à quelques kilomètres de Lorient, Maisons de l'Avenir Quimper vous présente cette maison de 4 pièces de 89 m² à Quimperlé (29300).
Cette maison possède 2 niveaux. Elle est composée de trois chambres, d'une cuisine et de deux salles de bains. La maison est neuve.
Le terrain de la propriété est de 412 m².
Cinq établissements scolaires sont implantés à moins de 10 minutes à pied, tout comme une crèche. Niveau transports, on trouve la gare Quimperlé dans les alentours. La nationale N165 est accessible à 2 km. Il y a des commerces, des boulangeries, un supermarché, quatre boucheries-charcuteries et deux poissonneries à proximité. Le marché Place saint Michel a lieu tous les vendredis.
Elle est à vendre pour la somme de 248 700 €.
Contactez notre agence (Marie LAURENT : 02-98-54-75-20) pour toute question sur cette maison. Maisons de l'Avenir Quimper vous accompagne à toutes les étapes de l'achat et dans toutes vos démarches.
Mentions légales
Maisons de l’Avenir, constructeur de maisons individuelles, propose en collaboration avec ses partenaires fonciers, une sélection de terrains constructibles, selon disponibilité, pour la construction de maisons neuves définies par le constructeur, avec un contrat de construction de maison individuelle, dans le cadre de la loi du 19/12/1990. Prix net, hors frais notariés, d'enregistrement et de publicité foncière
Terrain proposé au prix de : 46 000 €
Maison proposée au prix de : 202 700 €
Etiquette énergie : A. Assurances et garanties du constructeur (RC professionnelle, décennale, dommage ouvrage, Garantie de livraison à prix et délai convenu). https://www.maisonsdelavenir.com/mentions-legales/
Agence Maisons de l'Avenir de Quimper (29000)
- Téléphone :
- 02 98 54 75 20
- Adressse :
- 3, chemin de Gwaremm Ar Wern
29000 Quimper, France